Maison neuve à
Quincy-Voisins
(77860) Référence :
CY2400704_2
Prix du projet : Maison avec Terrain
prix 296 000 €
- 5 pièces
- 3 chambres
- Surface maison 90 m2
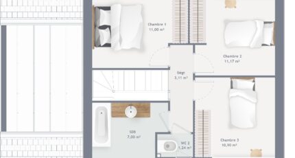
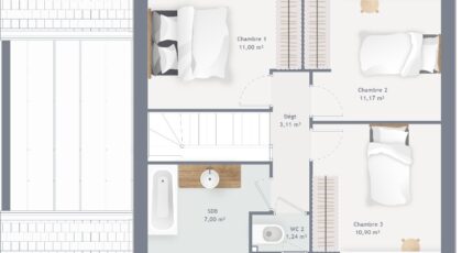
VENTE : maison T5 (90 m²) à Quincy-Voisins
IDÉALEMENT SITUÉE - MAISON 5 PIÈCES NEUVE
À vendre : au pied du Transilien P (gare d'Esbly, 30 min de Paris), nous vous présentons cette maison de 5 pièces de 90 m² idéalement située dans Quincy-Voisins (77860).
Il s'agit d'une maison de 2 niveaux. Elle comporte trois chambres, une cuisine et une salle de bains. Cette maison est neuve.
Le terrain du bien s'étend sur 209 m².
Cette maison est située dans un quartier recherché. On trouve des établissements scolaires maternelles et élémentaires à moins de 10 minutes à pied. Côté transports en commun, il y a la ligne de RER A (Chessy-Marne-La-Vallée) ainsi que huit gares à moins de 10 minutes en voiture. Il y a un tennis, une bibliothèque, une boulangerie, trois commerces, un bureau de poste, une épicerie et une boucherie-charcuterie à quelques minutes du logement.
Elle est proposée à l'achat pour 296 000 €.
Contactez notre agence (Cedric YAHIAOUI : 06-66-57-00-63) pour obtenir de plus amples informations sur le bien ou sur les démarches à suivre.
Annonce proposée par un Agent Commercial Partenaire.
Mentions légales
Terrain proposé par un partenaire foncier selon disponibilités et autorisation de publicité au prix de 134 000 €. Hors droit d'enregistrement et frais de notaire. Terrain + Maison proposés au prix de 296 000 € (Hors branchements et raccordements, papiers peints, peintures, revêtement de sol dans les chambres. Tarif modifiable sans préavis). Etiquette énergie : A. Différents modèles disponibles pour ce terrain. Assurances et garanties du constructeur (RC professionnelle, décennale, dommage ouvrage, garantie de remboursement de l'acompte, livraison à prix et délai convenu) : https://www.maisons-france-confort.fr/mentions-legales/. HEXAOM Services est enregistré auprès de l'ORIAS en tant que Courtier en financement, Niveau 1, sous le numéro 14001345.Agence Maisons France Confort de Mareuil-lès-Meaux (77100)
- Téléphone :
- 01 60 09 28 30
- Adressse :
- Domexpo Est Village La Hayette
77100 Mareuil-lès-Meaux, France