Maison neuve à
Quincy-Voisins (77860) Référence : CY2400740_1

Prix du projet : Maison avec Terrain

prix 274 000 €

  • 5 pièces
  • 3 chambres
  • Surface maison 80 m2

Maison de 5 pièces (80 m²) à vendre à Quincy-Voisins
IDÉALEMENT SITUÉE - MAISON 5 PIÈCES NEUVE
En vente : à deux pas de la gare d'Esbly (Paris à 30 min par le Transilien P), idéalement située dans Quincy-Voisins (77860), nous sommes ravis de vous présenter cette maison de 5 pièces de 80 m².
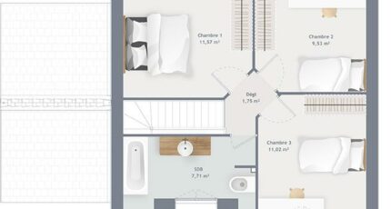
C'est une maison de 2 niveaux. Elle est composée de trois chambres, d'une cuisine et d'une salle de bains. La maison est neuve.
Le terrain du bien s'étend sur 186 m².
Cette maison se trouve dans un quartier prisé. Des écoles maternelles et élémentaires sont implantées à moins de 10 minutes à pied. Niveau transports, il y a la ligne de RER A (Chessy-Marne-La-Vallée) ainsi que huit gares à moins de 10 minutes en voiture. On trouve un tennis, une bibliothèque, une boulangerie, trois commerces, une boucherie-charcuterie, un bureau de poste et une épicerie à quelques minutes du logement.
Elle est à vendre pour la somme de 274 000 €.
N'hésitez pas à prendre contact avec notre agence (YAHIAOUI Cedric : 06-66-57-00-63) pour toute question sur la maison ou sur les modalités de vente. Concrétisez vos projets immobiliers avec Maisons France Confort Mareuil-lès-Meaux.

Annonce proposée par un Agent Commercial Partenaire.

Mentions légales

Terrain proposé par un partenaire foncier selon disponibilités et autorisation de publicité au prix de 130 000 €. Hors droit d'enregistrement et frais de notaire. Terrain + Maison proposés au prix de 274 000 € (Hors branchements et raccordements, papiers peints, peintures, revêtement de sol dans les chambres. Tarif modifiable sans préavis). Etiquette énergie : A. Différents modèles disponibles pour ce terrain. Assurances et garanties du constructeur (RC professionnelle, décennale, dommage ouvrage, garantie de remboursement de l'acompte, livraison à prix et délai convenu) : https://www.maisons-france-confort.fr/mentions-legales/. HEXAOM Services est enregistré auprès de l'ORIAS en tant que Courtier en financement, Niveau 1, sous le numéro 14001345.

Contactez l'agence de Mareuil-lès-Meaux

01 60 09 28 30

    * Champs obligatoires

    Vos informations sont traitées par HEXAOM et transmises à un conseiller commercial qui vous contactera afin de répondre à votre demande. Les plans et images présentés sur notre site sont la propriété d’HEXAOM et ne peuvent pas être reproduits sans son accord. Pour retrouver notre politique de protection des données personnelles et exercer vos droits conformément à la « loi informatique et liberté » cliquez-ici.