Maison neuve à
Quincy-Voisins (77860) Référence : MZ2402665_1

Prix du projet : Maison avec Terrain

prix 324 000 €

  • 6 pièces
  • 4 chambres
  • Surface maison 115 m2

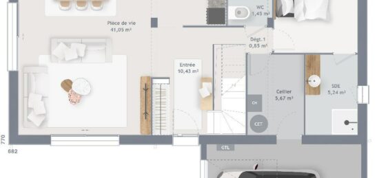
Maison de 6 pièces (115 m²) en vente à Quincy-Voisins
IDÉALEMENT SITUÉE - MAISON 6 PIÈCES NEUVE
À proximité du Transilien P (gare d'Esbly, 30 min de Paris), à vendre idéalement située dans Quincy-Voisins (77860), votre agence Maisons France Confort Mareuil-lès-Meaux est heureuse de vous proposer cette maison de 6 pièces de 115 m².
Cette maison compte 2 niveaux. Elle inclut quatre chambres, une cuisine et deux salles de bains. Cette maison est neuve.
Le terrain du bien s'étend sur 171 m².
Le bien se situe dans un secteur convoité. On trouve des écoles primaires à moins de 10 minutes à pied. Niveau transports, il y a la ligne de RER A (Chessy-Marne-La-Vallée) ainsi que huit gares à moins de 10 minutes en voiture. Il y a un tennis, une bibliothèque, une boulangerie, trois commerces, un bureau de poste, une épicerie et une supérette à quelques minutes.
Il est proposé à l'achat pour 136 665 €.
N'hésitez pas à prendre contact avec notre constructeur (Mehdi ZOUBIR : 06-27-85-29-98) pour toute information sur la maison. Maisons France Confort Mareuil-lès-Meaux vous accompagne à toutes les étapes de l'achat et dans toutes vos démarches.

Annonce proposée par un Agent Commercial Partenaire.

Mentions légales

Terrain proposé par un partenaire foncier selon disponibilités et autorisation de publicité au prix de 117 000 €. Hors droit d'enregistrement et frais de notaire. Terrain + Maison proposés au prix de 324 000 € (Hors branchements et raccordements, papiers peints, peintures, revêtement de sol dans les chambres. Tarif modifiable sans préavis). Etiquette énergie : A. Différents modèles disponibles pour ce terrain. Assurances et garanties du constructeur (RC professionnelle, décennale, dommage ouvrage, garantie de remboursement de l'acompte, livraison à prix et délai convenu) : https://www.maisons-france-confort.fr/mentions-legales/. HEXAOM Services est enregistré auprès de l'ORIAS en tant que Courtier en financement, Niveau 1, sous le numéro 14001345.

Contactez l'agence de Mareuil-lès-Meaux

01 60 09 28 30

    * Champs obligatoires

    Vos informations sont traitées par HEXAOM et transmises à un conseiller commercial qui vous contactera afin de répondre à votre demande. Les plans et images présentés sur notre site sont la propriété d’HEXAOM et ne peuvent pas être reproduits sans son accord. Pour retrouver notre politique de protection des données personnelles et exercer vos droits conformément à la « loi informatique et liberté » cliquez-ici.