Maison neuve à
Quincy-Voisins
(77860) Référence :
CY2432842_1
Prix du projet : Maison avec Terrain
prix 300 000 €
- 5 pièces
- 3 chambres
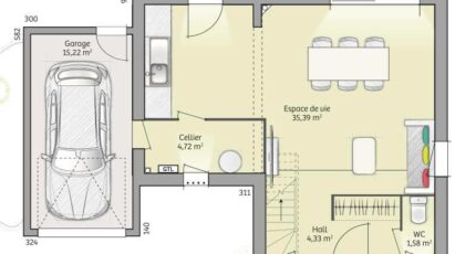
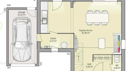
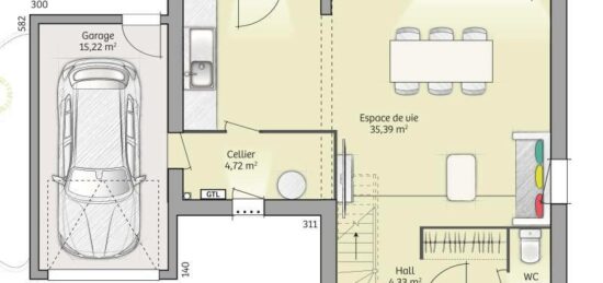
- Surface maison 90 m2
VENTE d'une maison de 5 pièces (90 m²) à Quincy-Voisins
PROCHE D'AULNAY-SOUS-BOIS - MAISON 5 PIÈCES NEUVE
En vente : à proximité du Transilien P (gare d'Esbly, 30 min de Paris), Maisons France Confort Magny-le-Hongre vous présente cette maison de 5 pièces de 90 m² à Quincy-Voisins (77860).
Cette maison compte 2 niveaux. Son intérieur est composé de trois chambres, d'une cuisine et d'une salle de bains. La maison est neuve.
Le terrain du bien est de 190 m².
Des établissements scolaires maternelles et élémentaires se trouvent à moins de 10 minutes à pied. Côté transports, il y a la ligne de RER A (Chessy-Marne-La-Vallée) ainsi que huit gares à moins de 10 minutes en voiture. On trouve un tennis, une bibliothèque, une boulangerie, trois commerces, une épicerie, un bureau de poste et une boucherie-charcuterie à quelques minutes du logement.
Son prix de vente est de 300 000 €.
Contactez notre agence (Cedric YAHIAOUI : 06-66-57-00-63) pour toute information sur cette maison, sur les modalités de vente ou sur les démarches à suivre. Maisons France Confort Magny-le-Hongre vous accompagne à toutes les étapes de votre projet et dans tous vos projets immobiliers.
Annonce proposée par un Agent Commercial Partenaire.
Mentions légales
Terrain proposé par un partenaire foncier selon disponibilités et autorisation de publicité au prix de 140 000 €. Hors droit d'enregistrement et frais de notaire. Terrain + Maison proposés au prix de 300 000 € (Hors branchements et raccordements, papiers peints, peintures, revêtement de sol dans les chambres. Tarif modifiable sans préavis). Etiquette énergie : A. Différents modèles disponibles pour ce terrain. Assurances et garanties du constructeur (RC professionnelle, décennale, dommage ouvrage, garantie de remboursement de l'acompte, livraison à prix et délai convenu) : https://www.maisons-france-confort.fr/mentions-legales/. HEXAOM Services est enregistré auprès de l'ORIAS en tant que Courtier en financement, Niveau 1, sous le numéro 14001345.Agence Maisons France Confort de Magny-le-Hongre (77700)
- Téléphone :
- 01 84 80 92 96
- Adressse :
- 11 rue de Courtalin
77700 Magny-le-Hongre, France
