Maison neuve à
Quincy-Voisins
(77860) Référence :
CY2433932_1
Prix du projet : Maison avec Terrain
prix 294 000 €
- 5 pièces
- 3 chambres
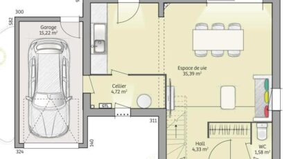
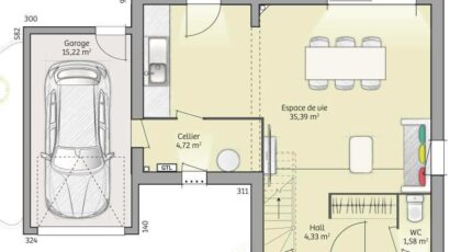
- Surface maison 90 m2
Maison de 5 pièces (90 m²) à vendre à Quincy-Voisins
MAISON 5 PIÈCES NEUVE - PROCHE D'AULNAY-SOUS-BOIS
À côté de la gare d'Esbly (Paris à 30 min avec le Transilien P), votre agence Maisons France Confort Magny-le-Hongre est heureuse de vous proposer cette maison de 5 pièces de 90 m² et de 109 m² de terrain en vente à Quincy-Voisins (77860).
Cette maison comporte 2 niveaux. Son intérieur est composé de trois chambres, d'une cuisine et d'une salle de bains. Cette maison est neuve.
Des écoles primaires sont implantées à moins de 10 minutes à pied. Niveau transports en commun, il y a la ligne de RER A (Chessy-Marne-La-Vallée) ainsi que huit gares à moins de 10 minutes en voiture. On trouve un tennis, une bibliothèque, une boulangerie, trois commerces, une supérette, une boucherie-charcuterie et une épicerie à quelques minutes à peine.
Elle est proposée à l'achat pour 294 000 €.
Contactez Cedric YAHIAOUI (06-66-57-00-63) pour toute information sur la maison, sur les démarches à suivre ou sur les modalités de vente.
Annonce proposée par un Agent Commercial Partenaire.
Mentions légales
Terrain proposé par un partenaire foncier selon disponibilités et autorisation de publicité au prix de 134 000 €. Hors droit d'enregistrement et frais de notaire. Terrain + Maison proposés au prix de 294 000 € (Hors branchements et raccordements, papiers peints, peintures, revêtement de sol dans les chambres. Tarif modifiable sans préavis). Etiquette énergie : A. Différents modèles disponibles pour ce terrain. Assurances et garanties du constructeur (RC professionnelle, décennale, dommage ouvrage, garantie de remboursement de l'acompte, livraison à prix et délai convenu) : https://www.maisons-france-confort.fr/mentions-legales/. HEXAOM Services est enregistré auprès de l'ORIAS en tant que Courtier en financement, Niveau 1, sous le numéro 14001345.Agence Maisons France Confort de Magny-le-Hongre (77700)
- Téléphone :
- 01 84 80 92 96
- Adressse :
- 11 rue de Courtalin
77700 Magny-le-Hongre, France
