Maison neuve à
Quincy-Voisins
(77860) Référence :
IL2442794_4
Prix du projet : Maison avec Terrain
prix 359 000 €
- 5 pièces
- 3 chambres
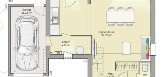
- Surface maison 85 m2
VENTE : maison T5 (85 m²) à Quincy-Voisins
PROCHE D'AULNAY-SOUS-BOIS - MAISON 5 PIÈCES NEUVE
À quelques minutes du Transilien P (gare d'Esbly, 30 min de Paris), en vente à Quincy-Voisins (77860), votre agence Maisons France Confort Magny-le-Hongre est heureuse de vous présenter cette maison de 5 pièces de 85 m² et de 354 m² de terrain. Elle dispose de trois chambres, d'une cuisine et de deux salles de bains.
Cette maison comporte 2 niveaux. Elle est neuve.
Il y a des établissements scolaires primaires à moins de 10 minutes à pied. Niveau transports, on trouve la ligne de RER A (Chessy-Marne-La-Vallée) ainsi que huit gares à moins de 10 minutes en voiture. On trouve un tennis, une bibliothèque, une boulangerie, trois commerces, une épicerie, une supérette et un bureau de poste à proximité de la maison.
Elle est à vendre pour la somme de 359 000 €.
N'hésitez pas à prendre contact avec Ishane LASLEDJ (tél : 06-68-91-18-74) pour toute question sur cette maison. Maisons France Confort Magny-le-Hongre est là pour vous accompagner à toutes les étapes de l'achat.
Annonce proposée par un Agent Commercial Partenaire.
Mentions légales
Terrain proposé par un partenaire foncier selon disponibilités et autorisation de publicité au prix de 170 000 €. Hors droit d'enregistrement et frais de notaire. Terrain + Maison proposés au prix de 359 000 € (Hors branchements et raccordements, papiers peints, peintures, revêtement de sol dans les chambres. Tarif modifiable sans préavis). Etiquette énergie : A. Différents modèles disponibles pour ce terrain. Assurances et garanties du constructeur (RC professionnelle, décennale, dommage ouvrage, garantie de remboursement de l'acompte, livraison à prix et délai convenu) : https://www.maisons-france-confort.fr/mentions-legales/. HEXAOM Services est enregistré auprès de l'ORIAS en tant que Courtier en financement, Niveau 1, sous le numéro 14001345.Agence Maisons France Confort de Mareuil-lès-Meaux (77100)
- Téléphone :
- 01 60 09 28 30
- Adressse :
- Domexpo Est Village La Hayette
77100 Mareuil-lès-Meaux, France
