Maison neuve à
Rambouillet
(78120) Référence :
OPB2423183_1
Prix du projet : Maison avec Terrain
prix 410 000 €
- 6 pièces
- 4 chambres
- Surface maison 110 m2
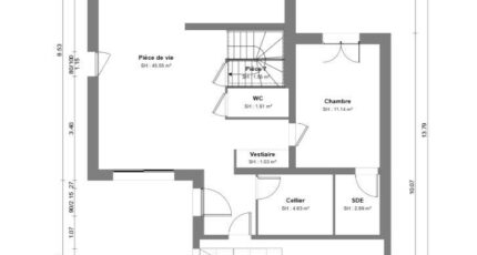
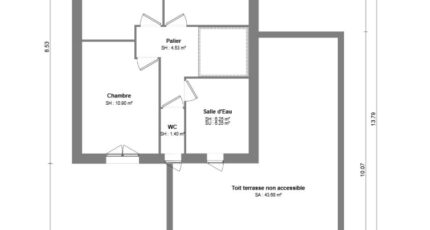
Rambouillet : maison de 6 pièces (110 m²) en vente
PROCHE GARE - MAISON 6 PIÈCES NEUVE
À vendre : proche de la gare, dans Rambouillet (78120), proche de la gare, nous vous proposons cette maison de 6 pièces de 100 m² et de 250 m² de terrain.
Cette maison comporte 2 niveaux. Son intérieur propose quatre chambres, une cuisine et deux salles de bains. Cette maison est neuve.
Il y a tous les types d'établissements scolaires (de la maternelle au lycée) à moins de 10 minutes à pied. Niveau transports, on trouve la gare Rambouillet juste à côté, mettant la maison à 35 min de Paris en transilien. Il y a des commerces, des boulangeries, trois supermarchés, un bureau de poste et deux supérettes dans les environs. Le marché Place Roux anime les environs.
Son prix de vente est de 410 000 €.
Contactez notre agence (PINTO BARRETO Orlando : 06-40-47-48-40) pour tout renseignement sur cette maison ou sur les démarches à suivre. Maisons France Confort Nogent-le-Phaye est là pour vous accompagner à toutes les étapes de l'achat.
Annonce proposée par un Agent Commercial Partenaire.
Mentions légales
Terrain proposé par un partenaire foncier selon disponibilités et autorisation de publicité au prix de 190 000 €. Hors droit d'enregistrement et frais de notaire. Terrain + Maison proposés au prix de 410 000 € (Hors branchements et raccordements, papiers peints, peintures, revêtement de sol dans les chambres. Tarif modifiable sans préavis). Etiquette énergie : A. Différents modèles disponibles pour ce terrain. Assurances et garanties du constructeur (RC professionnelle, décennale, dommage ouvrage, garantie de remboursement de l'acompte, livraison à prix et délai convenu) : https://www.maisons-france-confort.fr/mentions-legales/. HEXAOM Services est enregistré auprès de l'ORIAS en tant que Courtier en financement, Niveau 1, sous le numéro 14001345.Agence Maisons France Confort de Nogent-le-Phaye (28630)
- Téléphone :
- 02 37 31 92 17
- Adressse :
- RN 10
28630 Nogent-le-Phaye, France
