Maison neuve à
Rampillon (77370) Référence : CY2436489_1

Prix du projet : Maison avec Terrain

prix 243 000 €

  • 5 pièces
  • 3 chambres
  • Surface maison 90 m2

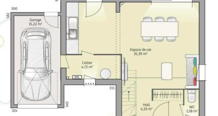
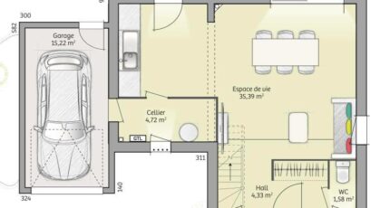
Maison de 5 pièces (90 m²) à vendre à Rampillon
PROCHE DE MELUN - MAISON 5 PIÈCES NEUVE
À vendre : à proximité du Transilien P (gare de Nangis, 45 min de Paris), nous sommes heureux de vous proposer cette maison de 5 pièces de 90 m² à Rampillon (77370).
Il s'agit d'une maison de 2 niveaux. Son intérieur inclut trois chambres, une cuisine et une salle de bains. Cette maison est neuve.
Le terrain du bien est de 551 m².
Une école primaire est implantée dans le quartier. Niveau transports en commun, il y a la gare Nangis à moins de 10 minutes en voiture. On trouve un tennis dans les environs.
Son prix de vente est de 243 000 €.
Contactez notre agence (Cedric YAHIAOUI : 06-66-57-00-63) pour obtenir de plus amples renseignements sur ce bien.

Annonce proposée par un Agent Commercial Partenaire.

Mentions légales

Terrain proposé par un partenaire foncier selon disponibilités et autorisation de publicité au prix de 83 000 €. Hors droit d'enregistrement et frais de notaire. Terrain + Maison proposés au prix de 243 000 € (Hors branchements et raccordements, papiers peints, peintures, revêtement de sol dans les chambres. Tarif modifiable sans préavis). Etiquette énergie : A. Différents modèles disponibles pour ce terrain. Assurances et garanties du constructeur (RC professionnelle, décennale, dommage ouvrage, garantie de remboursement de l'acompte, livraison à prix et délai convenu) : https://www.maisons-france-confort.fr/mentions-legales/. HEXAOM Services est enregistré auprès de l'ORIAS en tant que Courtier en financement, Niveau 1, sous le numéro 14001345.

Contactez l'agence de Magny-le-Hongre

01 84 80 92 96

    * Champs obligatoires

    Vos informations sont traitées par HEXAOM et transmises à un conseiller commercial qui vous contactera afin de répondre à votre demande. Les plans et images présentés sur notre site sont la propriété d’HEXAOM et ne peuvent pas être reproduits sans son accord. Pour retrouver notre politique de protection des données personnelles et exercer vos droits conformément à la « loi informatique et liberté » cliquez-ici.