Maison neuve à 
  Ranchy
 (14400)  Référence :
 JS2322548_4 
Prix du projet : Maison avec Terrain
prix 211 000 €
- 5 pièces
- 3 chambres
- Surface maison 95 m2
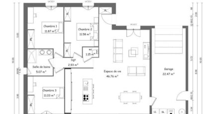
Bayeux : maison de 5 pièces (95 m²) à vendre
PROCHE DE CAEN - MAISON 5 PIÈCES NEUVE
À vendre à 9 km de la Manche et à quelques kilomètres de Caen, nous sommes ravis de vous proposer cette maison de 5 pièces de plain-pied de 95 m² à Bayeux (14400). Conçue de plain-pied, elle dispose de trois chambres, d'une cuisine et de deux salles de bains.
Le terrain de la maison s'étend sur 301 m².
Cette maison est neuve.
Des établissements scolaires de tous types se trouvent à moins de 10 minutes à pied, tout comme une crèche. Niveau transports, il y a la gare Bayeux dans les environs. Il y a un accès à la nationale N13 à 3 km. On trouve une bibliothèque, des commerces, des boulangeries, un supermarché, des boucheries-charcuteries et un bureau de poste à proximité de la maison. 2 marchés animent le quartier.
Elle est à vendre pour la somme de 211 000 €.
Contactez notre agence (HUE Emilie : 06-29-81-46-66) pour tout renseignement sur la maison, sur les modalités de vente ou sur les démarches à suivre. Maisons France Confort Bayeux est là pour vous accompagner dans tous vos projets immobiliers.
Annonce proposée par un Agent Commercial Partenaire.
Mentions légales
Terrain proposé par un partenaire foncier selon disponibilités et autorisation de publicité au prix de 56 000 €. Hors droit d'enregistrement et frais de notaire. Maison proposée, avec un contrat de construction de maison individuelle, dans le cadre de la loi du 19/12/1990, au prix de 155 000 € (Hors branchements et raccordements, papiers peints, peintures, revêtement de sol dans les chambres, qui sont chiffrés dans les travaux qui restent à charge du client. Tarif modifiable sans préavis). Étiquette énergie : A. Différents modèles disponibles pour ce terrain. Assurances et garanties du constructeur comprises (RC professionnelle, décennale, dommage ouvrage).Agence Maisons France Confort de Bayeux (14400)
- Téléphone :
- 02 31 51 20 91
- Adressse :
-  2, rue Saint Loup
 14400 Bayeux, France
 
  
  
  
  
  
 