Maison neuve à
Ranchy
(14400) Référence :
JS2322548_5
Prix du projet : Maison avec Terrain
prix 256 000 €
- 7 pièces
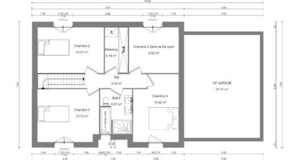
- 5 chambres
- Surface maison 120 m2
Bayeux : maison de 7 pièces (120 m²) à vendre
MAISON 7 PIÈCES NEUVE - PROCHE DE CAEN
À vendre : à 9 km de la Manche et à deux pas de Caen, votre agence Maisons France Confort Bayeux est ravie de vous présenter cette maison de 7 pièces de 120 m² et de 301 m² de terrain à Bayeux (14400). Elle inclut cinq chambres, une cuisine et deux salles de bains.
Il s'agit d'une maison de 2 niveaux. Elle est neuve.
Il y a des écoles (de la maternelle au lycée) à moins de 10 minutes à pied, tout comme une structure d'accueil pour la petite enfance. Côté transports en commun, on trouve la gare Bayeux juste à côté. La nationale N13 est accessible à 3 km. Il y a une bibliothèque, des commerces, des boulangeries, un supermarché, trois épiceries et des boucheries-charcuteries à quelques minutes. Enfin, 2 marchés animent le quartier.
Elle est à vendre pour la somme de 256 000 €.
Prenez contact avec notre agence (Emilie HUE : 06-29-81-46-66) pour toute information sur cette maison, sur les modalités de vente ou sur les démarches à suivre. Maisons France Confort Bayeux vous accompagne à toutes les étapes de votre projet et dans tous vos projets immobiliers.
Annonce proposée par un Agent Commercial Partenaire.
Mentions légales
Terrain proposé par un partenaire foncier selon disponibilités et autorisation de publicité au prix de 56 000 €. Hors droit d'enregistrement et frais de notaire. Maison proposée, avec un contrat de construction de maison individuelle, dans le cadre de la loi du 19/12/1990, au prix de 200 000 € (Hors branchements et raccordements, papiers peints, peintures, revêtement de sol dans les chambres, qui sont chiffrés dans les travaux qui restent à charge du client. Tarif modifiable sans préavis). Étiquette énergie : A. Différents modèles disponibles pour ce terrain. Assurances et garanties du constructeur comprises (RC professionnelle, décennale, dommage ouvrage).Agence Maisons France Confort de Bayeux (14400)
- Téléphone :
- 02 31 51 20 91
- Adressse :
- 2, rue Saint Loup
14400 Bayeux, France
