Maison neuve à 
  Ranchy
 (14400)  Référence :
 JS2322548_8 
Prix du projet : Maison avec Terrain
prix 221 000 €
- 6 pièces
- 4 chambres
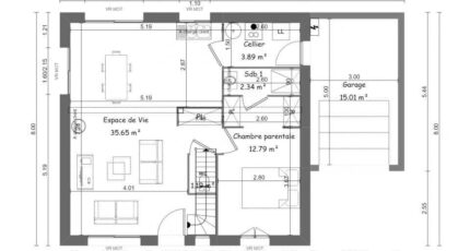
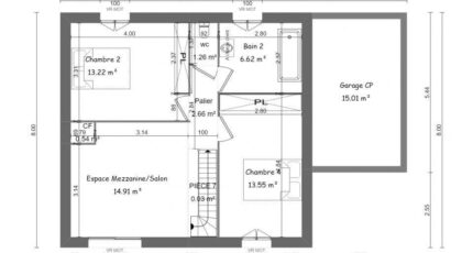
- Surface maison 110 m2
Bayeux : maison de 6 pièces (110 m²) en vente
PROCHE DE CAEN - MAISON 6 PIÈCES NEUVE
À 9 km de la Manche et à quelques kilomètres de Caen, votre agence Maisons France Confort Bayeux est ravie de vous proposer en vente à Bayeux (14400), cette maison de 6 pièces de 110 m².
Il s'agit d'une maison de 2 niveaux. Son intérieur est composé de quatre chambres, d'une cuisine et de deux salles de bains. La maison est neuve.
Le terrain du bien s'étend sur 301 m².
Il y a des écoles du primaire et du secondaire à moins de 10 minutes à pied, tout comme une structure d'accueil pour la petite enfance. Côté transports, on trouve la gare Bayeux dans les alentours. On trouve un accès à la nationale N13 à 3 km. Il y a une bibliothèque, des commerces, des boulangeries, un supermarché, un bureau de poste et trois épiceries à proximité. 2 marchés animent le quartier.
Elle est à vendre pour la somme de 221 000 €.
Contactez Emilie HUE (06-29-81-46-66) pour toute information sur cette maison ou sur les modalités de vente. Maisons France Confort Bayeux vous accompagne dans toutes vos démarches et dans tous vos projets immobiliers.
Annonce proposée par un Agent Commercial Partenaire.
Mentions légales
Terrain proposé par un partenaire foncier selon disponibilités et autorisation de publicité au prix de 56 000 €. Hors droit d'enregistrement et frais de notaire. Maison proposée, avec un contrat de construction de maison individuelle, dans le cadre de la loi du 19/12/1990, au prix de 165 000 € (Hors branchements et raccordements, papiers peints, peintures, revêtement de sol dans les chambres, qui sont chiffrés dans les travaux qui restent à charge du client. Tarif modifiable sans préavis). Étiquette énergie : A. Différents modèles disponibles pour ce terrain. Assurances et garanties du constructeur comprises (RC professionnelle, décennale, dommage ouvrage).Agence Maisons France Confort de Bayeux (14400)
- Téléphone :
- 02 31 51 20 91
- Adressse :
-  2, rue Saint Loup
 14400 Bayeux, France
 
  
  
  
  
 