Maison neuve à
Razengues
(32600) Référence :
SP2400304_2
Prix du projet : Maison avec Terrain
prix 365 000 €
- 6 pièces
- 4 chambres
- Surface maison 115 m2
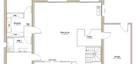
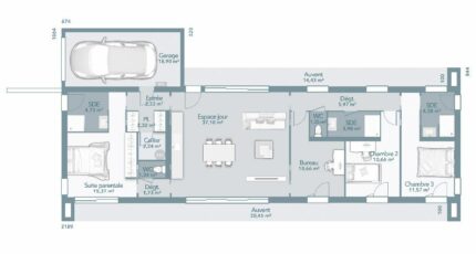
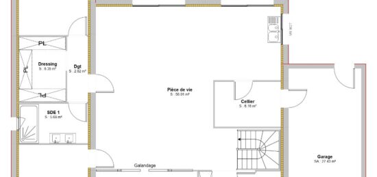
VENTE d'une maison de 6 pièces (115 m²) à Razengues
PROCHE DE COLOMIERS - MAISON 6 PIÈCES NEUVE
À quelques kilomètres de Colomiers, notre agence Maisons France Confort Tournefeuille est ravie de vous proposer à vendre à Razengues (32600), cette maison de 6 pièces de plain-pied de 115 m². Conçue de plain-pied, elle propose quatre chambres, une cuisine et deux salles de bains.
Le terrain du bien s'étend sur 900 m².
Cette maison est neuve.
Des établissements scolaires de tous types sont implantés à moins de 10 minutes en voiture, tout comme deux crèches à moins de 10 minutes à pied. Côté transports, on trouve la gare L'Isle-Jourdain à moins de 10 minutes en voiture. On trouve un accès à la nationale N124 à 7 km. Il y a deux bassins de natation, des tennis, une bibliothèque, des commerces, des boulangeries, des supermarchés, quatre bureaux de poste et des boucheries-charcuteries à quelques minutes à peine.
Elle est proposée à l'achat pour 365 000 €.
Pour plus d'informations et organiser une visite, contactez l'agence Maisons France Confort Tournefeuille au 05 61 16 47 77.
Annonce proposée par un Agent Commercial Partenaire.
Mentions légales
Terrain proposé par un partenaire foncier selon disponibilités et autorisation de publicité au prix de 85 000 €. Hors droit d'enregistrement et frais de notaire. Terrain + Maison proposés au prix de 365 000 € (Hors branchements et raccordements, papiers peints, peintures, revêtement de sol dans les chambres. Tarif modifiable sans préavis). Etiquette énergie : A. Différents modèles disponibles pour ce terrain. Assurances et garanties du constructeur (RC professionnelle, décennale, dommage ouvrage, garantie de remboursement de l'acompte, livraison à prix et délai convenu) : https://www.maisons-france-confort.fr/mentions-legales/. HEXAOM Services est enregistré auprès de l'ORIAS en tant que Courtier en financement, Niveau 1, sous le numéro 14001345.Agence Maisons France Confort de Tournefeuille (31170)
- Téléphone :
- 05 61 16 47 77
- Adressse :
- 114 chemin de Larramet
31170 Tournefeuille, France
