Maison neuve à
Rethel
(08300) Référence :
NG2414087_9
Prix du projet : Maison avec Terrain
prix 250 000 €
- 5 pièces
- 3 chambres
- Surface maison 90 m2
Maison neuve de 90m2 avec 3 chambres à vendre à Rethel, construction avec des matériaux de qualité (ossature en brique) répondant aux dernières normes RE2020.
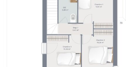
Le modèle présenté est Eco Concept 90 R+1 GI. Des lignes très design pour cette maison qui se compose de 3 chambres avec placards, un espace de vie ouvert sur la cuisine, une salle de bain, deux WC (dont un au rez-de-chaussée), un cellier et un garage.
La construction traditionnelle aux normes RE2020 de la maison est réalisée en brique et l'ensemble des matériaux utilisés sont de qualité afin de vous assurer un investissement durable.
Terrain constructible de 456m2 entièrement viabilisé à Rethel idéalement situé au calme et proche de toutes les commodités.
Rethel est une commune recherchée pour son axe direct, ses commodités (écoles jusqu'au collège, commerces, gare et nombreuses associations sportives et culturelles pour la famille) et sa proximité avec Reims, Charleville, Warmeriville, Le Châtelet sur Retourne, Bergnicourt, Bazancourt, Tagnon et Poix Terron, Vouziers, Machault et Attigny.
Pour plus de renseignements vous pouvez me contacter , Nicolas GUILLAUME de l'agence Maisons France Confort de Cormontreuil au 07.77.79.23.59
Mentions légales
Terrain proposé par un partenaire foncier selon disponibilités et autorisation de publicité au prix de 39 980 €. Hors droit d'enregistrement et frais de notaire. Terrain + Maison proposés au prix de 250 000 € (Hors branchements et raccordements, papiers peints, peintures, revêtement de sol dans les chambres. Tarif modifiable sans préavis). Etiquette énergie : A. Différents modèles disponibles pour ce terrain. Assurances et garanties du constructeur (RC professionnelle, décennale, dommage ouvrage, garantie de remboursement de l'acompte, livraison à prix et délai convenu) : https://www.maisons-france-confort.fr/mentions-legales/. HEXAOM Services est enregistré auprès de l'ORIAS en tant que Courtier en financement, Niveau 1, sous le numéro 14001345.Agence Maisons France Confort de Cormontreuil (51350)
- Téléphone :
- 03 26 46 40 50
- Adressse :
- 8 rue des rémouleurs
51350 Cormontreuil, France
