Maison neuve à
Riantec (56670) Référence : CC2322837_6

Prix du projet : Maison avec Terrain

prix 334 000 €

  • 5 pièces
  • 3 chambres
  • Surface maison 90 m2

VENTE : maison de 5 pièces (90 m²) à Riantec
EMPLACEMENT PRIVILÉGIÉ - MAISON 5 PIÈCES NEUVE
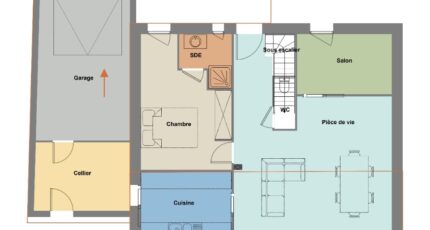
À vendre à 13 km de la côte atlantique et à deux pas de Lorient, bénéficiant d'un emplacement privilégié dans Riantec (56670), ayez le coup de coeur pour cette maison de 5 pièces de 90 m². Elle dispose de trois chambres, d'une cuisine et de deux salles de bains.
Le terrain du bien est de 480 m².
C'est une maison de 2 niveaux. Elle est neuve.
Cette maison se situe dans un quartier recherché. Il y a l'École Primaire Privée Saint Joseph à moins de 10 minutes à pied. Côté transports, on trouve les gares Lorient Bretagne Sud et Hennebont à moins de 10 minutes en voiture. Les nationales N165 et N24 sont accessibles à moins de 10 km. Il y a une bibliothèque et un bassin de natation à proximité du logement.
Elle est à vendre pour la somme de 334 000 €.
Prenez contact avec Christophe COLLOCH (tél : 02-97-21-63-96) pour plus d'informations sur la maison, sur les modalités de vente ou sur les démarches à suivre. Maisons de l'Avenir Lorient est là pour vous accompagner dans tous vos projets immobiliers.

Mentions légales

Maisons de l’Avenir, constructeur de maisons individuelles, propose en collaboration avec ses partenaires fonciers, une sélection de terrains constructibles, selon disponibilité, pour la construction de maisons neuves définies par le constructeur, avec un contrat de construction de maison individuelle, dans le cadre de la loi du 19/12/1990. Prix net, hors frais notariés, d'enregistrement et de publicité foncière

Terrain proposé au prix de : 116 000 €

Maison proposée au prix de : 218 000 €

Etiquette énergie : A. Assurances et garanties du constructeur (RC professionnelle, décennale, dommage ouvrage, Garantie de livraison à prix et délai convenu). https://www.maisonsdelavenir.com/mentions-legales/

Contactez l'agence de Lorient

02 97 21 63 96

    * Champs obligatoires

    Vos informations sont traitées par HEXAOM et transmises à un conseiller commercial qui vous contactera afin de répondre à votre demande. Les plans et images présentés sur notre site sont la propriété d’HEXAOM et ne peuvent pas être reproduits sans son accord. Pour retrouver notre politique de protection des données personnelles et exercer vos droits conformément à la « loi informatique et liberté » cliquez-ici.