Maison neuve à
Ribérac
(24600) Référence :
BV2434030_3
Prix du projet : Maison avec Terrain
prix 284 820 €
- 5 pièces
- 3 chambres
- Surface maison 107 m2
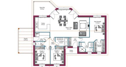
Maison T5 (107 m²) à vendre à Ribérac
IDÉALEMENT SITUÉE - MAISON 5 PIÈCES NEUVE
En vente : à quelques kilomètres de Périgueux, Maisons de la Côte Atlantique Notre Dame de Sanilhac vous présente cette maison de 5 pièces de plain-pied de 107 m² et de 4 000 m² de terrain, idéalement située dans Ribérac (24600). Elle dispose de trois chambres, d'une cuisine et d'une salle de bains.
Cette maison est neuve.
Cette maison se situe dans un secteur recherché. Des écoles du primaire et du secondaire sont implantées à moins de 10 minutes à pied. On trouve un tennis, une bibliothèque, deux bassins de natation, des commerces, des boulangeries, un supermarché, deux épiceries et quatre boucheries-charcuteries dans les environs. Le marché Centre-Ville a lieu tous les vendredis matin.
Elle est à vendre pour la somme de 284 820 €.
Contactez Bruno VERGNAUD (06-85-43-32-95) pour plus de renseignements sur la propriété. Maisons de la Côte Atlantique Notre Dame de Sanilhac est là pour vous accompagner dans tous vos projets immobiliers.
Mentions légales
Idée de réalisation en modèle prêt à décorer sur l'un de nos terrains partenaires, sous réserve de disponibilités. Voir détails en agence.Agence Maisons de la Côte Atlantique de Notre-Dame-de-Sanilhac (24660)
- Téléphone :
- 05 53 45 89 88
- Adressse :
- N°25, Espace Couture
24660 Notre-Dame-de-Sanilhac, France
