Maison neuve à
Roaillan
(33210) Référence :
HD2452827_4
Prix du projet : Maison avec Terrain
prix 214 800 €
- 3 pièces
- 2 chambres
- Surface maison 69 m2
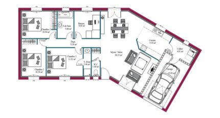
VENTE : maison de 3 pièces (69 m²) à Roaillan
EMPLACEMENT PRIVILÉGIÉ - MAISON 3 PIÈCES NEUVE
Contactez Hélène DEFFRESSIGNE (tél : O6-25-79-77-67)
À vendre : bénéficiant d'un emplacement privilégié dans Roaillan (33210), découvrez cette maison de 3 pièces de plain-pied de 69 m² et de 675 m² de terrain.
Elle offre deux chambres, une cuisine et une salle de bains. La maison est neuve.
Cette maison se situe dans un quartier prisé. On y trouve une école primaire. Côté transports en commun, on trouve trois gares (Langon, Saint-Macaire et Preignac) à moins de 10 minutes en voiture. Les autoroutes A62 et A65 et la nationale N524 sont accessibles à moins de 9 km. Il y a un tennis à proximité du logement.
Elle est à vendre pour la somme de 214 800 €.
Contactez notre agence (DEFFRESSIGNE Hélène : O6-25-79-77-67) pour obtenir de plus amples informations sur la maison ou sur les modalités de vente. Maisons de la Côte Atlantique Langon est là pour vous accompagner dans toutes vos démarches.
Mentions légales
Idée de réalisation en modèle prêt à décorer sur l'un de nos terrains partenaires, sous réserve de disponibilités. Voir détails en agence.Agence Maisons de la Côte Atlantique de Langon (33210)
- Téléphone :
- 05 56 76 82 20
- Adressse :
- 2, Rue du Onze Novembre
33210 Langon, France
