Maison neuve à
Roaillan
(33210) Référence :
ML2481590_4
Prix du projet : Maison avec Terrain
prix 218 966 €
- 4 pièces
- 3 chambres
- Surface maison 85 m2
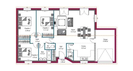
VENTE d'une maison de 4 pièces (85 m²) à Roaillan
IDÉALEMENT SITUÉE - MAISON 4 PIÈCES NEUVE
À vendre : nous sommes ravis de vous proposer cette maison de 4 pièces de plain-pied de 85 m², idéalement située dans Roaillan (33210).
Conçue de plain-pied, elle comporte trois chambres, une cuisine et une salle de bains. Cette maison est neuve.
Le terrain de la propriété s'étend sur 670 m².
La maison se trouve dans un quartier prisé. Une école primaire y est implantée. Niveau transports, il y a les gares Langon, Saint-Macaire et Preignac à moins de 10 minutes en voiture. Les autoroutes A62 et A65 et la nationale N524 sont accessibles à moins de 9 km. On trouve un tennis dans les environs.
Elle est à vendre pour la somme de 218 966 €.
Contactez notre agence (LAGORCE Maryne : O6-81-35-86-92) pour obtenir de plus amples informations sur la maison ou sur les modalités de vente. Faites de vos projets immobiliers une réalité avec Maisons de la Côte Atlantique Langon.
Mentions légales
Idée de réalisation en modèle prêt à décorer sur l'un de nos terrains partenaires, sous réserve de disponibilités. Voir détails en agence.Agence Maisons de la Côte Atlantique de Langon (33210)
- Téléphone :
- 05 56 76 82 20
- Adressse :
- 2, Rue du Onze Novembre
33210 Langon, France
