Maison neuve à
Romans-sur-Isère
(26100) Référence :
AM2433950_1
Prix du projet : Maison avec Terrain
prix 320 000 €
- 4 pièces
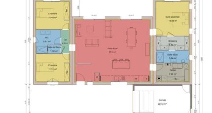
- 3 chambres
- Surface maison 121 m2
Devenez propriétaire à MONTCHENU - Maison 121 m² + Terrain - 320000 €
Maisons France Confort - vous propose, la construction d'une maison moderne de 121 m² parfaitement pensée pour les familles
Atouts de votre projet :
Maison neuve, moderne et économe en énergie
Espaces fonctionnels et lumineux
Terrain idéalement situé, proche des écoles, commerces et services
Accession facilitée grâce au PTZ (Prêt à Taux Zéro)
Prix clé en main : 3200000 € (terrain + maison)
Contactez Amandine Maggioni, votre conseillère Maisons France Confort, et donnez vie à votre projet dès aujourd'hui au 06 26 23 28 93 .
Déjà plus de 100 000 familles nous ont fait confiance, pourquoi pas vous ?
Avec Maisons France Confort, vous bénéficiez de l'expérience du constructeur N°1 en France ainsi que de toutes les garanties du contrat CCMI pour construire en toute sérénité.
Mentions légales
Terrain proposé par un partenaire foncier selon disponibilités et autorisation de publicité au prix de 62 000 €. Hors droit d'enregistrement et frais de notaire. Terrain + Maison proposés au prix de 320 000 € (Hors branchements et raccordements, papiers peints, peintures, revêtement de sol dans les chambres. Tarif modifiable sans préavis). Etiquette énergie : A. Différents modèles disponibles pour ce terrain. Assurances et garanties du constructeur (RC professionnelle, décennale, dommage ouvrage, garantie de remboursement de l'acompte, livraison à prix et délai convenu) : https://www.maisons-france-confort.fr/mentions-legales/. HEXAOM Services est enregistré auprès de l'ORIAS en tant que Courtier en financement, Niveau 1, sous le numéro 14001345.Agence Maisons France Confort de Montélimar (26200)
- Téléphone :
- 04 75 92 40 32
- Adressse :
- Bd du Président François Mitterrand
26200 Montélimar, France
