Maison neuve à
Roquettes
(31120) Référence :
TF2493800_5
Prix du projet : Maison avec Terrain
prix 322 000 €
- 5 pièces
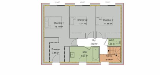
- 4 chambres
- Surface maison 110 m2
Roquettes - Donnez vie à votre future maison !
Imaginez votre maison sur ce beau terrain plat de 550 m², entièrement viabilisé, idéalement situé à deux pas du centre du village.
Vous profitez d'un quotidien facile avec écoles, commerces et services à proximité immédiate, tout en restant à quelques minutes de Portet-sur-Garonne et de Toulouse.
Un cadre de vie recherché, entre confort, accessibilité et environnement agréable... parfait pour concrétiser un projet moderne, économe en énergie et tourné vers l'avenir.
Une opportunité rare pour construire la maison qui vous ressemble.
🏡 Natura 110 : La maison plain-pied en L qui vous séduira
🌟 Un agencement idéal pour un quotidien harmonieux 🌟
Avec son élégante architecture en L, la maison Natura 110 est conçue pour offrir une séparation judicieuse entre l'espace de vie et l'espace nuit, tout en optimisant confort et fonctionnalité.
✨ Les points forts de cette maison :
Espace de vie lumineux et ouvert : Entrée, salon, salle à manger et cuisine réunis dans une ambiance chaleureuse et conviviale.
Espace nuit dédié : Une aile complète réservée à 4 chambres, une salle de bains et un accès direct au garage.
Garage inclus, pratique pour stationner ou pour le rangement.
Montant terrain + maison 322 000 € (hors frais annexes).
🎨 Votre maison, votre style :
Personnalisez les plans selon vos besoins et vos envies.
Choisissez parmi nos prestations pour un intérieur qui reflète votre mode de vie et votre budget.
📞 Contactez Maisons France Confort MURET dès aujourd'hui pour découvrir comment faire la maison de vos rêves. Avec plus de 107 ans d'expérience, Maisons France Confort vous accompagne à chaque étape de votre projet.
✨ Maisons France Confort : Bien construire votre futur ✨
Annonce proposée par un Agent Commercial Partenaire.
Mentions légales
Terrain proposé par un partenaire foncier selon disponibilités et autorisation de publicité au prix de 139 900 €. Hors droit d'enregistrement et frais de notaire. Terrain + Maison proposés au prix de 322 000 € (Hors branchements et raccordements, papiers peints, peintures, revêtement de sol dans les chambres. Tarif modifiable sans préavis). Etiquette énergie : A. Différents modèles disponibles pour ce terrain. Assurances et garanties du constructeur (RC professionnelle, décennale, dommage ouvrage, garantie de remboursement de l'acompte, livraison à prix et délai convenu) : https://www.maisons-france-confort.fr/mentions-legales/. HEXAOM Services est enregistré auprès de l'ORIAS en tant que Courtier en financement, Niveau 1, sous le numéro 14001345.Agence Maisons France Confort de Muret (31600)
- Téléphone :
- 05 61 76 07 80
- Adressse :
- 7, allée Niel
31600 Muret, France
