Maison neuve à
Rots (14980) Référence : KD2490088_1

Prix du projet : Maison avec Terrain

prix 292 000 €

  • 5 pièces
  • 3 chambres
  • Surface maison 90 m2

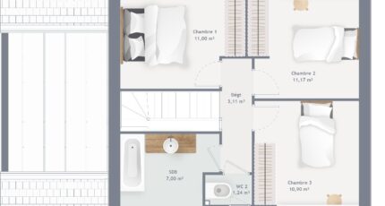
VENTE d'une maison de 5 pièces (90 m²) à Rots
IDÉALEMENT SITUÉE - MAISON 5 PIÈCES NEUVE
En vente : à 16 km de la Manche et à 8 km de Caen, notre agence Maisons France Confort Caen est heureuse de vous proposer cette maison de 5 pièces de 90 m² et de 362 m² de terrain avec vue sur espace vert idéalement située dans Rots (14980).
Cette maison possède 2 niveaux. Elle compte trois chambres, une cuisine et une salle de bains. Cette maison est neuve.
Ce bien se trouve dans un quartier convoité. Il y a l'École Élémentaire les Roseaux et l'École Maternelle les Roseaux à moins de 10 minutes à pied. Côté transports, on trouve quatre gares à moins de 10 minutes en voiture. L'autoroute A84 et les nationales N13 et N814 sont accessibles à moins de 6 km. Il y a une bibliothèque, plusieurs commerces et une boucherie-charcuterie dans les environs.
Il est proposé à l'achat pour 292 000 €.
N'hésitez pas à prendre contact avec Kevin DUCHESNE (06-88-19-70-17) pour toute question sur la maison. Maisons France Confort Caen est là pour vous accompagner dans toutes vos démarches.

Mentions légales

Terrain proposé par un partenaire foncier selon disponibilités et autorisation de publicité au prix de 99 000 €. Hors droit d'enregistrement et frais de notaire. Terrain + Maison proposés au prix de 292 000 € (Hors branchements et raccordements, papiers peints, peintures, revêtement de sol dans les chambres. Tarif modifiable sans préavis). Etiquette énergie : A. Différents modèles disponibles pour ce terrain. Assurances et garanties du constructeur (RC professionnelle, décennale, dommage ouvrage, garantie de remboursement de l'acompte, livraison à prix et délai convenu) : https://www.maisons-france-confort.fr/mentions-legales/. HEXAOM Services est enregistré auprès de l'ORIAS en tant que Courtier en financement, Niveau 1, sous le numéro 14001345.

Contactez l'agence de Caen

02 31 86 12 21

    * Champs obligatoires

    Vos informations sont traitées par HEXAOM et transmises à un conseiller commercial qui vous contactera afin de répondre à votre demande. Les plans et images présentés sur notre site sont la propriété d’HEXAOM et ne peuvent pas être reproduits sans son accord. Pour retrouver notre politique de protection des données personnelles et exercer vos droits conformément à la « loi informatique et liberté » cliquez-ici.