Maison neuve à
Roucourt
(59169) Référence :
CS2493413_2
Prix du projet : Maison avec Terrain
prix 265 340 €
- 5 pièces
- 3 chambres
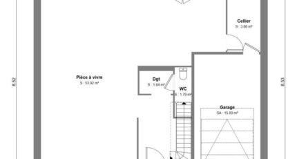
- Surface maison 90 m2
VENTE : maison de 5 pièces (90 m²) à Roucourt
QUARTIER RECHERCHÉ - MAISON 5 PIÈCES NEUVE
À vendre : à 27 km de la frontière belge et à 27 km de Valenciennes, venez découvrir cette maison de 5 pièces de 90 m² et de 550 m² de terrain construite dans un quartier recherché de Roucourt (59169). Elle propose trois chambres, une cuisine et une salle de bains.
Cette maison compte 2 niveaux. Elle est neuve.
Elle se trouve dans un secteur attractif. On y trouve une école primaire. Niveau transports en commun, il y a 11 gares à moins de 10 minutes en voiture. L'autoroute A21 est accessible à 6 km. On trouve une bibliothèque à quelques minutes de la maison.
Elle est à vendre pour la somme de 265 340 €.
Contactez notre agence (SMOLAREK Christian : 06-71-36-79-31) pour toute information sur cette maison ou sur les modalités de vente.
Mentions légales
Terrain proposé par un partenaire foncier selon disponibilités et autorisation de publicité au prix de 80 000 €. Hors droit d'enregistrement et frais de notaire. Terrain + Maison proposés au prix de 265 340 € (Hors branchements et raccordements, papiers peints, peintures, revêtement de sol dans les chambres. Tarif modifiable sans préavis). Etiquette énergie : A. Différents modèles disponibles pour ce terrain. Assurances et garanties du constructeur (RC professionnelle, décennale, dommage ouvrage, garantie de remboursement de l'acompte, livraison à prix et délai convenu) : https://www.maisons-france-confort.fr/mentions-legales/. HEXAOM Services est enregistré auprès de l'ORIAS en tant que Courtier en financement, Niveau 1, sous le numéro 14001345.Agence Maisons France Confort de Valenciennes (59300)
- Téléphone :
- 03 27 09 13 49
- Adressse :
- 1, Boulevard Saly
59300 Valenciennes, France
