Maison neuve à
Rue
(80120) Référence :
CC2432116_1
Prix du projet : Maison avec Terrain
prix 276 630 €
- 6 pièces
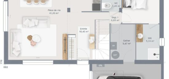
- 4 chambres
- Surface maison 115 m2
VENTE d'une maison F6 (115 m²) à Rue
QUARTIER RECHERCHÉ - MAISON 6 PIÈCES NEUVE
À vendre : à 13 km de la Manche, située dans un secteur convoité de Rue (80120), Maisons Les Naturelles Abbeville vous présente cette maison de 6 pièces de 115 m² et de 454 m² de terrain.
Cette maison compte 2 niveaux. Elle comporte quatre chambres, une cuisine et deux salles de bains. Cette maison est neuve.
La maison se situe dans un quartier recherché. Tous les types d'établissements scolaires se trouvent à moins de 10 minutes à pied. Côté transports en commun, il y a la gare Rue à quelques pas de la maison. Il y a un accès à l'autoroute A16 à 6 km. On trouve un tennis, une bibliothèque, quatre boulangeries, des commerces, trois supermarchés, une épicerie et trois boucheries-charcuteries à quelques minutes à peine. Enfin, le marché Place de Verdun a lieu chaque samedi matin.
Son prix de vente est de 276 223 €.
Prenez contact avec Camille CISSEVILLE (tél : 06-86-73-58-15) pour tout renseignement sur la maison ou sur les modalités de vente.
Mentions légales
Terrain proposé par un partenaire foncier selon disponibilités et autorisation de publicité au prix de 55 210 €. Hors droit d'enregistrement et frais de notaire. Terrain + Maison proposés au prix de 276 630 € (Hors branchements et raccordements, papiers peints, peintures, revêtement de sol dans les chambres. Tarif modifiable sans préavis). Etiquette énergie : A. Différents modèles disponibles pour ce terrain. Assurances et garanties du constructeur (RC professionnelle, décennale, dommage ouvrage, garantie de remboursement de l'acompte, livraison à prix et délai convenu) : https://www.maisonslesnaturelles.fr/informations-legales/.Agence Maisons Les Naturelles de Abbeville (80100)
- Téléphone :
- 03 22 19 22 55
- Adressse :
- 2 rue Lesueur
80100 Abbeville, France
