Maison neuve à
Ryes
(14400) Référence :
JS2322544_4
Prix du projet : Maison avec Terrain
prix 211 000 €
- 5 pièces
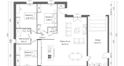
- 3 chambres
- Surface maison 95 m2
Bayeux : maison F5 (95 m²) à vendre
MAISON 5 PIÈCES NEUVE - PROCHE DE CAEN
En vente : localisée à 9 km de la Manche et à deux pas de Caen, nous vous proposons à Bayeux (14400), cette maison de 5 pièces de plain-pied de 95 m².
Son intérieur dispose de trois chambres, d'une cuisine et de deux salles de bains. La maison est neuve.
Le terrain du bien s'étend sur 301 m².
Il y a tous les types d'écoles (maternelle, élémentaire et secondaire) à moins de 10 minutes à pied, tout comme une structure d'accueil pour les enfants en bas âge. Niveau transports, on trouve la gare Bayeux dans un rayon de 1 km. La nationale N13 est accessible à 3 km. Il y a une bibliothèque, des commerces, des boulangeries, un supermarché, trois épiceries et un bureau de poste à quelques minutes. 2 marchés animent les environs.
Son prix de vente est de 211 000 €.
N'hésitez pas à prendre contact avec Emilie HUE (tél : 06-29-81-46-66) pour toute question sur cette maison ou sur les modalités de vente.
Annonce proposée par un Agent Commercial Partenaire.
Mentions légales
Terrain proposé par un partenaire foncier selon disponibilités et autorisation de publicité au prix de 56 000 €. Hors droit d'enregistrement et frais de notaire. Terrain + Maison proposés au prix de 155 000 € (Hors branchements et raccordements, papiers peints, peintures, revêtement de sol dans les chambres. Tarif modifiable sans préavis). Etiquette énergie : A. Différents modèles disponibles pour ce terrain. Assurances et garanties du constructeur (RC professionnelle, décennale, dommage ouvrage, garantie de remboursement de l'acompte, livraison à prix et délai convenu) : https://www.maisons-france-confort.fr/mentions-legales/. HEXAOM Services est enregistré auprès de l'ORIAS en tant que Courtier en financement, Niveau 1, sous le numéro 14001345.Agence Maisons France Confort de Bayeux (14400)
- Téléphone :
- 02 31 51 20 91
- Adressse :
- 2, rue Saint Loup
14400 Bayeux, France
