Maison neuve à
Ryes
(14400) Référence :
JS2322544_8
Prix du projet : Maison avec Terrain
prix 221 000 €
- 6 pièces
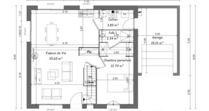
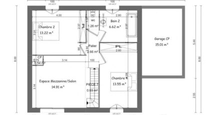
- 4 chambres
- Surface maison 110 m2
Bayeux : maison F6 (110 m²) en vente
PROCHE DE CAEN - MAISON 6 PIÈCES NEUVE
En vente : localisée à 9 km de la Manche et à quelques kilomètres de Caen, ayez le coup de coeur pour cette maison de 6 pièces de 110 m² à Bayeux (14400). Elle dispose de quatre chambres, d'une cuisine et de deux salles de bains.
Le terrain de la propriété s'étend sur 301 m².
Il s'agit d'une maison de 2 niveaux. Elle est neuve.
Il y a des établissements scolaires (de la maternelle au lycée) à moins de 10 minutes à pied, tout comme une structure d'accueil pour les tout-petits. Niveau transports en commun, on trouve la gare Bayeux juste à côté. La nationale N13 est accessible à 3 km. Il y a une bibliothèque, des commerces, des boulangeries, un supermarché, une supérette et trois épiceries à proximité. Enfin, 2 marchés animent le quartier.
Son prix de vente est de 221 000 €.
Prenez contact avec notre agence (HUE Emilie : 06-29-81-46-66) pour toute information sur cette maison. Maisons France Confort Bayeux vous accompagne dans tous vos projets immobiliers et à toutes les étapes de votre projet.
Annonce proposée par un Agent Commercial Partenaire.
Mentions légales
Terrain proposé par un partenaire foncier selon disponibilités et autorisation de publicité au prix de 56 000 €. Hors droit d'enregistrement et frais de notaire. Maison proposée, avec un contrat de construction de maison individuelle, dans le cadre de la loi du 19/12/1990, au prix de 165 000 € (Hors branchements et raccordements, papiers peints, peintures, revêtement de sol dans les chambres, qui sont chiffrés dans les travaux qui restent à charge du client. Tarif modifiable sans préavis). Étiquette énergie : A. Différents modèles disponibles pour ce terrain. Assurances et garanties du constructeur comprises (RC professionnelle, décennale, dommage ouvrage).Agence Maisons France Confort de Bayeux (14400)
- Téléphone :
- 02 31 51 20 91
- Adressse :
- 2, rue Saint Loup
14400 Bayeux, France
