Maison neuve à
Saiguède
(31470) Référence :
CC2420694_2
Prix du projet : Maison avec Terrain
prix 364 628 €
- 4 pièces
- 3 chambres
- Surface maison 110 m2
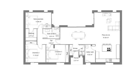
VENTE : maison de 4 pièces (110 m²) à Saiguède
MAISON 4 PIÈCES NEUVE - PROCHE DE TOULOUSE
En vente : localisée à deux pas de Toulouse, nous vous proposons cette maison de 4 pièces de plain-pied de 110 m² et de 712 m² de terrain à Saiguède (31470). Conçue de plain-pied, elle est composée de trois chambres, d'une cuisine et d'une salle de bains.
Cette maison est neuve.
Elle est à vendre pour la somme de 364 628 €.
Contactez nous pour toute information sur cette maison ou sur les démarches à suivre.
Maisons France Confort Tournefeuille 05.61.16.47.77 est là pour vous accompagner à toutes les étapes de l'achat.
Hors frais annexes.
Annonce proposée par un Agent Commercial Partenaire.
Mentions légales
Terrain proposé par un partenaire foncier selon disponibilités et autorisation de publicité au prix de 130 000 €. Hors droit d'enregistrement et frais de notaire. Terrain + Maison proposés au prix de 364 628 € (Hors branchements et raccordements, papiers peints, peintures, revêtement de sol dans les chambres. Tarif modifiable sans préavis). Etiquette énergie : A. Différents modèles disponibles pour ce terrain. Assurances et garanties du constructeur (RC professionnelle, décennale, dommage ouvrage, garantie de remboursement de l'acompte, livraison à prix et délai convenu) : https://www.maisons-france-confort.fr/mentions-legales/. HEXAOM Services est enregistré auprès de l'ORIAS en tant que Courtier en financement, Niveau 1, sous le numéro 14001345.Agence Maisons France Confort de Tournefeuille (31170)
- Téléphone :
- 05 61 16 47 77
- Adressse :
- 114 chemin de Larramet
31170 Tournefeuille, France
