Maison neuve à
Sailly-Labourse
(62113) Référence :
TH2466558_9
Prix du projet : Maison avec Terrain
prix 317 056 €
- 5 pièces
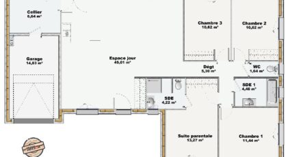
- 4 chambres
- Surface maison 113 m2
MAISON OSSATURE BOIS
VENTE d'une maison de 5 pièces (113 m²) à Sailly-Labourse
EMPLACEMENT PRIVILÉGIÉ - MAISON 5 PIÈCES NEUVE
À vendre : venez découvrir cette maison de 5 pièces de plain-pied de 113 m² et de 509 m² de terrain, bénéficiant d'un emplacement privilégié dans Sailly-Labourse (62113).
Elle est composée de quatre chambres, d'une cuisine et de deux salles de bains. Cette maison est neuve.
Elle se situe dans un secteur attractif. On trouve l'École Primaire Brassens-Monet à moins de 10 minutes à pied et une crèche. Niveau transports en commun, il y a 3 gares à moins de 10 minutes en voiture. Les autoroutes A26 et A21 sont accessibles à moins de 8 km. On trouve une bibliothèque et deux commerces dans les environs.
Elle est proposée à l'achat pour 317 056 €.
Contactez notre agence (Thomas HAUSTRATE : 06-49-81-47-04) pour plus d'informations sur la maison. Maisons France Confort Hénin-Beaumont vous accompagne à toutes les étapes de votre projet et dans toutes vos démarches.
Mentions légales
Terrain proposé par un partenaire foncier selon disponibilités et autorisation de publicité au prix de 82 100 €. Hors droit d'enregistrement et frais de notaire. Terrain + Maison proposés au prix de 317 056 € (Hors branchements et raccordements, papiers peints, peintures, revêtement de sol dans les chambres. Tarif modifiable sans préavis). Etiquette énergie : A. Différents modèles disponibles pour ce terrain. Assurances et garanties du constructeur (RC professionnelle, décennale, dommage ouvrage, garantie de remboursement de l'acompte, livraison à prix et délai convenu) : https://www.maisons-france-confort.fr/mentions-legales/. HEXAOM Services est enregistré auprès de l'ORIAS en tant que Courtier en financement, Niveau 1, sous le numéro 14001345.Agence Maisons France Confort de Hénin-Beaumont (62110)
- Téléphone :
- 03 21 14 37 05
- Adressse :
- Chemin de Noyelles
62110 Hénin-Beaumont, France
