Maison neuve à
Sains-en-Gohelle
(62114) Référence :
MH2424537_2
Prix du projet : Maison avec Terrain
prix 261 000 €
- 5 pièces
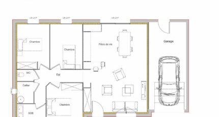
- 3 chambres
- Surface maison 83 m2
Sains-en-Gohelle : maison de 5 pièces (83 m²) à vendre
EMPLACEMENT PRIVILÉGIÉ - MAISON 5 PIÈCES NEUVE
En vente : maison de 5 pièces de plain-pied de 83 m², bénéficiant d'un emplacement d'exception dans Sains-en-Gohelle (62114). Son intérieur propose trois chambres, une cuisine et une salle de bains.
Le terrain du bien est de 560 m².
La maison est neuve.
Elle est située dans un quartier attractif. On trouve cinq établissements scolaires à moins de 10 minutes à pied. Côté transports en commun, il y a huit gares à moins de 10 minutes en voiture. Les autoroutes A26 et A21 sont accessibles à moins de 5 km. Nombreux commerces à proximité.
Son prix de vente est de 261 000 €.
Contactez notre agence (Marie HALFTERMEYER : o6-75-79-45-42) pour obtenir de plus amples informations sur cette maison et sur les modalités de vente. Concrétisez vos projets immobiliers avec Maisons France Confort Béthune.
Mentions légales
Terrain proposé par un partenaire foncier selon disponibilités et autorisation de publicité au prix de 64 500 €. Hors droit d'enregistrement et frais de notaire. Terrain + Maison proposés au prix de 261 000 € (Hors branchements et raccordements, papiers peints, peintures, revêtement de sol dans les chambres. Tarif modifiable sans préavis). Etiquette énergie : A. Différents modèles disponibles pour ce terrain. Assurances et garanties du constructeur (RC professionnelle, décennale, dommage ouvrage, garantie de remboursement de l'acompte, livraison à prix et délai convenu) : https://www.maisons-france-confort.fr/mentions-legales/. HEXAOM Services est enregistré auprès de l'ORIAS en tant que Courtier en financement, Niveau 1, sous le numéro 14001345.Agence Maisons France Confort de Béthune (62400)
- Téléphone :
- 03 21 02 07 45
- Adressse :
- 112 bd Jean Moulin
62400 Béthune, France
