Maison neuve à
Saint-André-d'Hébertot
(14130) Référence :
AL2443352_4
Prix du projet : Maison avec Terrain
prix 239 602 €
- 6 pièces
- 4 chambres
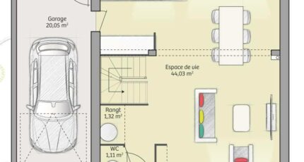
- Surface maison 91 m2
Maison de 6 pièces (91 m²) en vente à Saint-André-d'Hébertot
PROCHE DU HAVRE - MAISON 6 PIÈCES NEUVE
À 13 km de la Manche et à 25 km du Havre, à vendre à Saint-André-d'Hébertot (14130), découvrez cette maison de 6 pièces de 91 m².
Il s'agit d'une maison de 2 niveaux. Son intérieur dispose de quatre chambres, d'une cuisine et d'une salle de bains. La maison est neuve.
Le terrain du bien est de 616 m².
Une école primaire est implantée dans le quartier. Niveau transports, il y a la gare Pont-l'Évêque à moins de 10 minutes en voiture. Les autoroutes A13, A132 et A29 sont accessibles à moins de 8 km. On trouve deux commerces dans les environs.
Elle est à vendre pour la somme de 239 602 €.
Contactez Aurélien LEMONNIER (tél : 06-12-12-45-94) pour obtenir de plus amples renseignements sur cette maison, sur les démarches à suivre ou sur les modalités de vente.
Mentions légales
Terrain proposé par un partenaire foncier selon disponibilités et autorisation de publicité au prix de 69 000 €. Hors droit d'enregistrement et frais de notaire. Terrain + Maison proposés au prix de 239 602 € (Hors branchements et raccordements, papiers peints, peintures, revêtement de sol dans les chambres. Tarif modifiable sans préavis). Etiquette énergie : A. Différents modèles disponibles pour ce terrain. Assurances et garanties du constructeur (RC professionnelle, décennale, dommage ouvrage, garantie de remboursement de l'acompte, livraison à prix et délai convenu) : https://www.maisons-france-confort.fr/mentions-legales/. HEXAOM Services est enregistré auprès de l'ORIAS en tant que Courtier en financement, Niveau 1, sous le numéro 14001345.Agence Maisons France Confort de Deauville (14800)
- Téléphone :
- 02 31 87 32 01
- Adressse :
- 45, Avenue de la République
14800 Deauville, France
