Maison neuve à
Saint-Aubin-de-Blaye
(33820) Référence :
IN2436832_2
Prix du projet : Maison avec Terrain
prix 180 000 €
- 4 pièces
- 2 chambres
- Surface maison 90 m2
Contact : Isabelle NADAU - o7$83$16$38$49 - EXCLUSIVITÉ MCA BLAYE
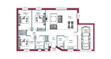
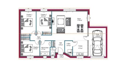
VENTE : maison T4 (90 m²) à Saint-Aubin-de-Blaye
IDÉALEMENT SITUÉE - MAISON 4 PIÈCES NEUVE
Maisons de la Côte Atlantique Blaye vous propose en exclusivité cette maison neuve de plain-pied de 90 m², à construire sur un terrain de 1 261 m² idéalement situé à Saint-Aubin-de-Blaye (33820).
Il s'agit d'un projet de construction entièrement personnalisable, conçu pour s'adapter à vos envies et à votre mode de vie.
La maison se compose de trois chambres, d'une cuisine fonctionnelle et d'une salle de bains. Les plans sont modulables afin de répondre parfaitement à vos besoins.
Le terrain se trouve dans un secteur recherché, avec une école primaire accessible à proximité. L'autoroute A10 et la nationale N10 sont accessibles à moins de 16 km. Vous trouverez également à deux pas : commerces de proximité, tennis, boulangerie, supérette et boucherie-charcuterie.
Prix proposé : 180 000 €
(Terrain + maison, hors frais annexes tels que les frais de notaire, les raccordements, l'assainissement, l'aménagement extérieur et les éventuelles options supplémentaires sous réserve de disponibilité via notre partenaire foncier)
Mentions légales
Idée de réalisation en modèle prêt à décorer sur l'un de nos terrains partenaires, sous réserve de disponibilités. Voir détails en agence.Agence Maisons de la Côte Atlantique de Blaye (33390)
- Téléphone :
- 05 57 32 87 63
- Adressse :
- 64, Rue Saint Romain
33390 Blaye, France
