Maison neuve à
Saint-Augustin
(17570) Référence :
PEH2275867_1
Prix du projet : Maison avec Terrain
prix 231 870 €
- 2 pièces
- 2 chambres
- Surface maison 70 m2
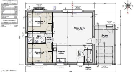
St-Augustin, proche coeur de ville et à 5mn des plages de St-Palais, 5 mn du centre commercial Val Lumière et à 10 mn de Royan, nous proposons une maison de plain-pied à construire de 70 m² RE 2020, avec pièce de vie de 32 m², 2 chambres, salle d'eau simple vasque, wc, garage de 16 m²
Pour tout renseignement complémentaire, contactez Pierre-Emmanuel HÜE (Bermax Construction Vaux-sur-Mer) au 06.25.78.28.20
Mentions légales
Terrain proposé par un partenaire foncier selon disponibilités et autorisation de publicité au prix de 84 840 €. Hors droit d'enregistrement et frais de notaire. Maison proposée, avec un contrat de construction de maison individuelle, dans le cadre de la loi du 19/12/1990, au prix de 147 030 € (Hors branchements et raccordements, papiers peints, peintures, revêtement de sol dans les chambres, qui sont chiffrés dans les travaux qui restent à charge du client. Tarif modifiable sans préavis). Étiquette énergie : A. Différents modèles disponibles pour ce terrain. Assurances et garanties du constructeur comprises (RC professionnelle, décennale, dommage ouvrage).Agence Bermax de Vaux-sur-Mer (17640)
- Téléphone :
- 05 46 38 01 49
- Adressse :
- 19 Avenue Malakoff
17640 Vaux-sur-Mer, France
