Maison neuve à
Saint-Avé (56890) Référence : AS2296183_4

Prix du projet : Maison avec Terrain

prix 450 900 €

  • 4 pièces
  • 3 chambres
  • Surface maison 89 m2

VENTE : maison T4 (89 m²) à Saint-Avé
IDÉALEMENT SITUÉE - MAISON 4 PIÈCES NEUVE
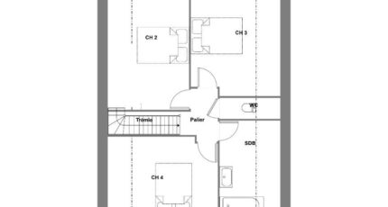
En vente à 7 km de l'océan Atlantique et à deux pas de Vannes, laissez vous charmer par, idéalement située dans Saint-Avé (56890), cette maison de 4 pièces de 89 m² et de 955 m² de terrain. Son intérieur offre trois chambres, une cuisine et deux salles de bains.
Cette maison compte 2 niveaux. Elle est neuve.
Cette maison se situe dans un secteur convoité. Quatre établissements scolaires se trouvent à moins de 10 minutes à pied, tout comme une structure d'accueil pour les tout-petits. Côté transports en commun, il y a la gare Vannes à moins de 10 minutes en voiture. Les nationales N165 et N166 sont accessibles à moins de 3 km. On trouve un tennis, des commerces, des boulangeries, deux supermarchés, deux boucheries-charcuteries et un bureau de poste à quelques minutes à peine. Le marché Place Notre Dame (mardi)/Place de l'Hôtel de Ville (dimanche) anime le quartier.
Son prix de vente est de 450 900 €.
N'hésitez pas à prendre contact avec Amaury SPECKHALS (02-97-68-32-50) pour tout renseignement sur le bien.

Mentions légales

Maisons de l’Avenir, constructeur de maisons individuelles, propose en collaboration avec ses partenaires fonciers, une sélection de terrains constructibles, selon disponibilité, pour la construction de maisons neuves définies par le constructeur, avec un contrat de construction de maison individuelle, dans le cadre de la loi du 19/12/1990. Prix net, hors frais notariés, d'enregistrement et de publicité foncière

Terrain proposé au prix de : 225 900 €

Maison proposée au prix de : 225 000 €

Etiquette énergie : A. Assurances et garanties du constructeur (RC professionnelle, décennale, dommage ouvrage, Garantie de livraison à prix et délai convenu). https://www.maisonsdelavenir.com/mentions-legales/

Contactez l'agence de Vannes

02 97 68 32 50

    * Champs obligatoires

    Vos informations sont traitées par HEXAOM et transmises à un conseiller commercial qui vous contactera afin de répondre à votre demande. Les plans et images présentés sur notre site sont la propriété d’HEXAOM et ne peuvent pas être reproduits sans son accord. Pour retrouver notre politique de protection des données personnelles et exercer vos droits conformément à la « loi informatique et liberté » cliquez-ici.