Maison neuve à
Saint-Brandan (22800) Référence : DD2457665_3

Prix du projet : Maison avec Terrain

prix 214 300 €

  • 4 pièces
  • 3 chambres
  • Surface maison 73 m2

VENTE d'une maison F4 (73 m²) à Saint-Brandan
IDÉALEMENT SITUÉE - MAISON 4 PIÈCES NEUVE
En vente : à 23 km de la Manche et à quelques kilomètres de Saint-Brieuc, votre agence Maisons de l'Avenir Saint-Brieuc est heureuse de vous présenter cette maison de 4 pièces de 73 m² idéalement située dans Saint-Brandan (22800).
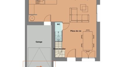
Il s'agit d'une maison de 2 niveaux. Son intérieur se divise en trois chambres, une cuisine et une salle de bains. Cette maison est neuve.
Le terrain du bien est de 464 m².
La maison se trouve dans un secteur recherché. Il y a l'École Primaire Privée Sainte Anne et l'École Primaire Publique les Chrysalides à moins de 10 minutes à pied. La nationale N12 est accessible à 15 km. On trouve une bibliothèque et un tennis à proximité.
Elle est à vendre pour la somme de 214 300 €.
N'hésitez pas à prendre contact avec notre constructeur Maisons de l'Avenir Saint Brieuc pour toute information sur la maison.

Mentions légales

Terrain proposé par un partenaire foncier selon disponibilités et autorisation de publicité au prix de 43 900 €. Hors droit d'enregistrement et frais de notaire. Terrain + Maison proposés au prix de 214 300 € (Hors branchements et raccordements, papiers peints, peintures, revêtement de sol dans les chambres. Tarif modifiable sans préavis). Etiquette énergie : A. Différents modèles disponibles pour ce terrain. Assurances et garanties du constructeur (RC professionnelle, décennale, dommage ouvrage, garantie de remboursement de l'acompte, livraison à prix et délai convenu) : https://www.maisonsdelavenir.com/mentions-legales/.

Contactez l'agence de Saint-Brieuc

02 96 78 52 58

    * Champs obligatoires

    Vos informations sont traitées par HEXAOM et transmises à un conseiller commercial qui vous contactera afin de répondre à votre demande. Les plans et images présentés sur notre site sont la propriété d’HEXAOM et ne peuvent pas être reproduits sans son accord. Pour retrouver notre politique de protection des données personnelles et exercer vos droits conformément à la « loi informatique et liberté » cliquez-ici.