Maison neuve à
Saint-Brevin-les-Pins
(44250) Référence :
VC2474296_2
Prix du projet : Maison avec Terrain
prix 450 000 €
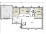
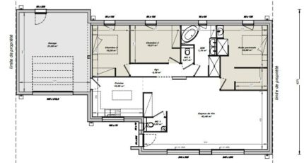
- 4 pièces
- 3 chambres
- Surface maison 107 m2
Saint Brévin l'Océan : maison F4 (107 m²) en vente
MAISON 4 PIÈCES NEUVE
À vendre sur le littoral atlantique, à Saint Brévin l'Océan (44250), découvrez cette maison de 4 pièces de plain-pied de 107 m².
Conçue de plain-pied, elle propose trois chambres, une cuisine et une salle de bains. La maison est neuve.
Le terrain du bien s'étend sur 928 m².
Côté transports, il y a cinq gares à moins de 10 minutes en voiture. La nationale N171 est accessible à 8 km. On trouve neuf commerces et une épicerie à quelques minutes à peine.
Elle est à vendre pour la somme de 450 000 €.
N'hésitez pas à prendre contact avec Vincent COUCHAUX (tél : 06-74-86-07-98) pour toute information sur cette maison, sur les démarches à suivre ou sur les modalités de vente. Donnez vie à vos projets immobiliers avec Maisons Tradilignes Pornic.
Mentions légales
Terrain proposé par un partenaire foncier selon disponibilités et autorisation de publicité au prix de 189 150 €. Hors droit d'enregistrement et frais de notaire. Terrain + Maison proposés au prix de 450 000 € (Hors branchements et raccordements, papiers peints, peintures, revêtement de sol dans les chambres. Tarif modifiable sans préavis). Etiquette énergie : A. Différents modèles disponibles pour ce terrain. Assurances et garanties du constructeur (RC professionnelle, décennale, dommage ouvrage, garantie de remboursement de l'acompte, livraison à prix et délai convenu) : https://www.tradilignes.fr/mentions-legales/.Agence Maisons Tradilignes de Pornic (44210)
- Téléphone :
- 02 40 82 59 91
- Adressse :
- 46 rue du Général de Gaulle
44210 Pornic, France
