Maison neuve à
Saint-Cézert
(31330) Référence :
CE2395535_5
Prix du projet : Maison avec Terrain
prix 413 578 €
- 5 pièces
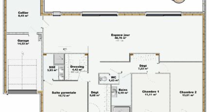
- 3 chambres
- Surface maison 120 m2
Maison de 5 pièces (120 m²) en vente à Saint-Cézert avec l'agence Maisons France Confort de Tournefeuille au 05.61.16.47.77
IDÉALEMENT SITUÉE - MAISON 5 PIÈCES NEUVE
À 28 km de Toulouse, nous sommes heureux de vous présenter cette maison de 5 pièces de plain-pied de 120 m² idéalement située dans Saint-Cézert (31330).
Elle propose trois chambres, une cuisine et deux salles de bains. La maison est neuve.
Le terrain du bien s'étend sur 1 000 m².
La maison se trouve dans un quartier recherché. Il y a l'École Maternelle Publique à moins de 10 minutes à pied. Côté transports, on trouve la gare Grisolles à moins de 10 minutes en voiture. Les autoroutes A62 et A20 sont accessibles à moins de 19 km. Il y a une bibliothèque à quelques minutes à peine.
Elle est à vendre pour la somme de 413 578 €.
N'hésitez pas à prendre contact avec l'agence Maisons France Confort de Tournefeuille au 05.61.16.47.77 pour tout renseignement sur la maison.
Annonce proposée par un Agent Commercial Partenaire.
Mentions légales
Terrain proposé par un partenaire foncier selon disponibilités et autorisation de publicité au prix de 68 000 €. Hors droit d'enregistrement et frais de notaire. Terrain + Maison proposés au prix de 413 578 € (Hors branchements et raccordements, papiers peints, peintures, revêtement de sol dans les chambres. Tarif modifiable sans préavis). Etiquette énergie : A. Différents modèles disponibles pour ce terrain. Assurances et garanties du constructeur (RC professionnelle, décennale, dommage ouvrage, garantie de remboursement de l'acompte, livraison à prix et délai convenu) : https://www.maisons-france-confort.fr/mentions-legales/. HEXAOM Services est enregistré auprès de l'ORIAS en tant que Courtier en financement, Niveau 1, sous le numéro 14001345.Agence Maisons France Confort de Tournefeuille (31170)
- Téléphone :
- 05 61 16 47 77
- Adressse :
- 114 chemin de Larramet
31170 Tournefeuille, France
