Maison neuve à
Saint-Chéron
(91530) Référence :
SA2416213_2
Prix du projet : Maison avec Terrain
prix 349 000 €
- 5 pièces
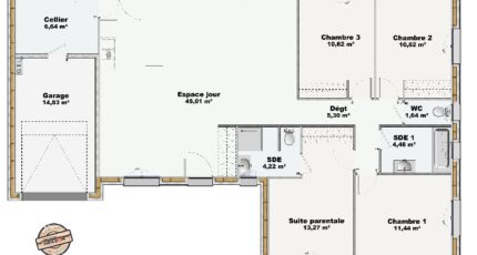
- 4 chambres
- Surface maison 113 m2
VENTE : maison de 5 pièces (113 m²) à Saint-Chéron
PROCHE DE VERSAILLES - MAISON 5 PIÈCES NEUVE
À deux pas du RER C, découvrez cette maison de 5 pièces de plain-pied de 113 m² en vente à Saint-Chéron (91530).
Son intérieur propose quatre chambres, une cuisine et deux salles de bains. La maison est neuve.
Le terrain du bien s'étend sur 800 m².
Il y a cinq établissements scolaires à moins de 10 minutes à pied. Niveau transports, on trouve la station de RER Saint-Chéron (ligne C) ainsi que la gare Saint-Chéron à quelques pas du bien, mettant Paris à 45 min de ce bien en rer. On trouve un tennis, une bibliothèque, des commerces, une boulangerie, un supermarché, une épicerie et un bureau de poste à proximité.
Elle est proposée à l'achat pour 349 000 €.
Contactez Sabrina AUGUSTINE (tél : 06-23-03-68-32) pour obtenir de plus amples renseignements sur la maison.
Mentions légales
Terrain proposé par un partenaire foncier selon disponibilités et autorisation de publicité au prix de 159 000 €. Hors droit d'enregistrement et frais de notaire. Terrain + Maison proposés au prix de 349 000 € (Hors branchements et raccordements, papiers peints, peintures, revêtement de sol dans les chambres. Tarif modifiable sans préavis). Etiquette énergie : A. Différents modèles disponibles pour ce terrain. Assurances et garanties du constructeur (RC professionnelle, décennale, dommage ouvrage, garantie de remboursement de l'acompte, livraison à prix et délai convenu) : https://www.maisons-france-confort.fr/mentions-legales/. HEXAOM Services est enregistré auprès de l'ORIAS en tant que Courtier en financement, Niveau 1, sous le numéro 14001345.Agence Maisons France Confort de Ris-Orangis (91130)
- Téléphone :
- 01 60 47 83 15
- Adressse :
- 57 rue Albert Rémy
91130 Ris-Orangis, France
