Maison neuve à
Saint-Chinian (34360) Référence : LR2491624_3

Prix du projet : Maison avec Terrain

prix 250 000 €

  • 5 pièces
  • 4 chambres
  • Surface maison 101 m2

VENTE : maison de 5 pièces (101 m²) à Saint-Chinian
IDÉALEMENT SITUÉE - MAISON 5 PIÈCES NEUVE
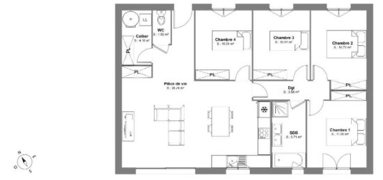
En vente : à 38 km de la côte méditerranéenne et à deux pas de Béziers, notre agence Maisons France Confort Béziers est heureuse de vous présenter cette maison de 5 pièces de plain-pied de 101 m², idéalement située dans Saint-Chinian (34360). Elle est composée de quatre chambres, d'une cuisine et d'une salle de bains.
Le terrain du bien s'étend sur 490 m².
La maison est neuve.
Cette maison est située dans un secteur attractif. L'École Élémentaire Jean Moulin, le Collège Jean Jaurès et l'École Maternelle la Noria se trouvent à moins de 10 minutes à pied. Il y a un tennis, des commerces, deux boucheries-charcuteries, deux poissonneries, une épicerie et un bureau de poste à proximité de la maison.
Elle est proposée à l'achat pour 250 000 €.
Contactez Léo RENARD (06-13-67-09-81) pour obtenir de plus amples informations sur la maison, sur les modalités de vente ou sur les démarches à suivre.

Mentions légales

Terrain proposé par un partenaire foncier selon disponibilités et autorisation de publicité au prix de 76 000 €. Hors droit d'enregistrement et frais de notaire. Terrain + Maison proposés au prix de 250 000 € (Hors branchements et raccordements, papiers peints, peintures, revêtement de sol dans les chambres. Tarif modifiable sans préavis). Etiquette énergie : A. Différents modèles disponibles pour ce terrain. Assurances et garanties du constructeur (RC professionnelle, décennale, dommage ouvrage, garantie de remboursement de l'acompte, livraison à prix et délai convenu) : https://www.maisons-france-confort.fr/mentions-legales/. HEXAOM Services est enregistré auprès de l'ORIAS en tant que Courtier en financement, Niveau 1, sous le numéro 14001345.

Contactez l'agence de Béziers

04 67 00 85 60

    * Champs obligatoires

    Vos informations sont traitées par HEXAOM et transmises à un conseiller commercial qui vous contactera afin de répondre à votre demande. Les plans et images présentés sur notre site sont la propriété d’HEXAOM et ne peuvent pas être reproduits sans son accord. Pour retrouver notre politique de protection des données personnelles et exercer vos droits conformément à la « loi informatique et liberté » cliquez-ici.