Maison neuve à
Saint-Côme-de-Fresné
(14960) Référence :
JS2485013_5
Prix du projet : Maison avec Terrain
prix 267 500 €
- 7 pièces
- 5 chambres
- Surface maison 102 m2
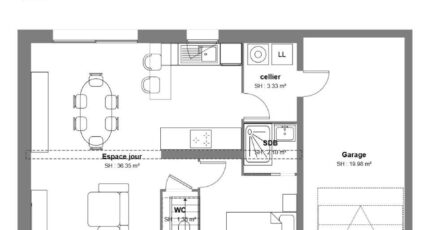
MAISON NEUVE À SAINT-CÔME-DE-FRESNÉ D'UNE SURFACE DE 102 M²
PRÉSENTATION DU BIEN
Située à Saint-Côme-de-Fresné, cette maison à construire bénéficie d'un emplacement idéal. Vous disposerez d'une surface habitable de 102 m² sur un terrain de 469 m².
Cette maison comprend cinq chambres et une cuisine. Elle offre également deux salles de bains pour votre confort.
La maison est répartie sur deux niveaux.
Le terrain qui accompagne la maison s'étend sur 469 m², offrant un espace extérieur adapté à vos projets.
ENVIRONNEMENT
Saint-Côme-de-Fresné est une commune idéalement située à 22 km de Caen. Vous trouverez à proximité une gare à Bayeux ainsi qu'un accès rapide à la nationale N13 située à 10 km.
Deux restaurants se situent à environ 6 minutes à pied, ainsi que des commerces dans les environs.
NOUS CONTACTER
Cette maison est proposée à la vente au prix de 267 500 euros.
Pour plus d'informations et pour réaliser votre projet de construction, contactez l'Agence Maisons France Confort de Bayeux au 06-29-81-46-66.
Elle se tient à votre disposition pour vous accompagner dans toutes les étapes.
Annonce proposée par un Agent Commercial Partenaire.
Mentions légales
Terrain proposé par un partenaire foncier selon disponibilités et autorisation de publicité au prix de 97 500 €. Hors droit d'enregistrement et frais de notaire. Terrain + Maison proposés au prix de 267 500 € (Hors branchements et raccordements, papiers peints, peintures, revêtement de sol dans les chambres. Tarif modifiable sans préavis). Etiquette énergie : A. Différents modèles disponibles pour ce terrain. Assurances et garanties du constructeur (RC professionnelle, décennale, dommage ouvrage, garantie de remboursement de l'acompte, livraison à prix et délai convenu) : https://www.maisons-france-confort.fr/mentions-legales/. HEXAOM Services est enregistré auprès de l'ORIAS en tant que Courtier en financement, Niveau 1, sous le numéro 14001345.Agence Maisons France Confort de Bayeux (14400)
- Téléphone :
- 02 31 51 20 91
- Adressse :
- 2, rue Saint Loup
14400 Bayeux, France
