Maison neuve à
Saint-Coulomb (35350) Référence : LA2487045_4

Prix du projet : Maison avec Terrain

prix 421 000 €

  • 4 pièces
  • 4 chambres
  • Surface maison 105 m2

VENTE d'une maison T4 (105 m²) à Saint-Coulomb
EMPLACEMENT PRIVILÉGIÉ - Situé dans une impasse, à deux pas des commerces.

MAISON 4 PIÈCES NEUVE
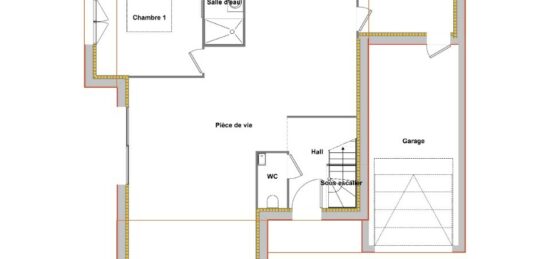
En vente à 3 km de la Manche et à deux pas de Saint-Malo, venez découvrir cette maison de 4 pièces de 105 m² et de 445 m² de terrain bénéficiant d'un emplacement d'exception dans Saint-Coulomb (35350). Son intérieur se divise en quatre chambres, une cuisine et deux salles de bains.
Cette maison possède 2 niveaux. Elle est neuve.
Cette maison est située dans un quartier prisé. On trouve l'École Primaire Publique les Blés En Herbe et l'École Primaire Privée St Joseph à moins de 10 minutes à pied. Côté transports en commun, il y a les gares La Gouesnière-Cancale-Saint-Méloir-des-Ondes et Saint-Malo à moins de 10 minutes en voiture. On trouve un accès à la nationale N176 à 15 km. On trouve un tennis, une bibliothèque, deux épiceries et deux boucheries-charcuteries à quelques minutes du logement.
Son prix de vente est de 421 000 €.
Contactez notre agence (Laetitia AMIRI : 02-99-83-07-20) pour obtenir de plus amples renseignements sur la maison ou sur les démarches à suivre.

Mentions légales

Terrain proposé par un partenaire foncier selon disponibilités et autorisation de publicité au prix de 171 071 €. Hors droit d'enregistrement et frais de notaire. Terrain + Maison proposés au prix de 421 000 € (Hors branchements et raccordements, papiers peints, peintures, revêtement de sol dans les chambres. Tarif modifiable sans préavis). Etiquette énergie : A. Différents modèles disponibles pour ce terrain. Assurances et garanties du constructeur (RC professionnelle, décennale, dommage ouvrage, garantie de remboursement de l'acompte, livraison à prix et délai convenu) : https://www.maisonsdelavenir.com/mentions-legales/.

Contactez l'agence de Saint-Carné

02 99 83 07 20

    * Champs obligatoires

    Vos informations sont traitées par HEXAOM et transmises à un conseiller commercial qui vous contactera afin de répondre à votre demande. Les plans et images présentés sur notre site sont la propriété d’HEXAOM et ne peuvent pas être reproduits sans son accord. Pour retrouver notre politique de protection des données personnelles et exercer vos droits conformément à la « loi informatique et liberté » cliquez-ici.