Maison neuve à
Saint-Denis-de-Pile (33910) Référence : DL2453148_1

Prix du projet : Maison avec Terrain

prix 349 600 €

  • 7 pièces
  • 4 chambres
  • Surface maison 146 m2

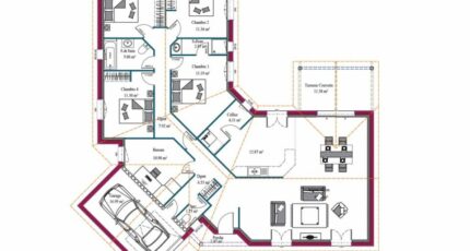
David LOPES des maisons MCA vous propose d'adapter le modèle Plaisir Sud, sur ce joli terrain de 1200m², sur la commune de Saint Denis de Pile, à 15 minutes de Libourne.

Notre modèle Plaisir Sud d'une superficie de 146 m2 est la maison familiale par excellence !

Elle dispose d'une une cuisine semi ouverte avec cellier attenant, donnant sur une magnifique pièce de vie traversante, baignée de lumière grâce à ses nombreuses ouvertures, donnant sur une belle terrasse couverte, pour offrir un espace jour de plus de 60m2.
Le coté nuit est composé de 3 grandes chambres avec placards, une suite parentale avec sa propre salle d'eau, un bureau de plus de 11m2, et une salle de bains avec wc.

Un garage de près de 17m2, vient compléter ce bel ensemble.

Le prix affiché comprend le terrain, les frais de notaire, les frais de raccordement, et cette maison livrée prête à décorer.

N'attendez plus, contactez vite votre conseiller David LOPES au O6-5O-88-58-8O à l'agence MCA de Libourne, afin qu'il vous guide dans les démarches et vous accompagne dans ce projet de construction personnalisé.

Mentions légales

Idée de réalisation en modèle prêt à décorer sur l'un de nos terrains partenaires, sous réserve de disponibilités. Voir détails en agence.

Contactez l'agence de Libourne

05 57 48 72 88

    * Champs obligatoires

    Vos informations sont traitées par HEXAOM et transmises à un conseiller commercial qui vous contactera afin de répondre à votre demande. Les plans et images présentés sur notre site sont la propriété d’HEXAOM et ne peuvent pas être reproduits sans son accord. Pour retrouver notre politique de protection des données personnelles et exercer vos droits conformément à la « loi informatique et liberté » cliquez-ici.