Maison neuve à
Saint-Fargeau-Ponthierry
(77310) Référence :
FS2456096_2
Prix du projet : Maison avec Terrain
prix 314 000 €
- 5 pièces
- 3 chambres
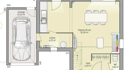
- Surface maison 90 m2
VENTE : maison T5 (90 m²) à Saint-Fargeau-Ponthierry
PROCHE GARE - MAISON 5 PIÈCES NEUVE
Au pied de la station Cesson (Paris à 30 min avec le RER D), venez découvrir en vente, proche de la gare de Saint-Fargeau-Ponthierry (77310), cette maison de 5 pièces de 90 m².
C'est une maison de 2 niveaux. Elle est composée de trois chambres, d'une cuisine et d'une salle de bains. La maison est neuve.
Le terrain de la propriété s'étend sur 1 000 m².
Il y a l'École Maternelle les Grands Cèdres, l'École Élémentaire les Grands Cèdres et l'École Maternelle les Bordes à moins de 10 minutes à pied. Côté transports, on trouve la ligne de RER D (Ponthierry-Pringy) ainsi que 15 gares à moins de 10 minutes en voiture. Il y a une bibliothèque, plusieurs commerces, une boucherie-charcuterie et trois épiceries à proximité du logement.
Elle est à vendre pour la somme de 314 000 €.
N'hésitez pas à prendre contact avec notre agence (SOUMARMON Félix : 06-10-24-97-84) pour plus de renseignements sur la maison ou sur les modalités de vente.
Annonce proposée par un Agent Commercial Partenaire.
Mentions légales
Terrain proposé par un partenaire foncier selon disponibilités et autorisation de publicité au prix de 145 000 €. Hors droit d'enregistrement et frais de notaire. Terrain + Maison proposés au prix de 314 000 € (Hors branchements et raccordements, papiers peints, peintures, revêtement de sol dans les chambres. Tarif modifiable sans préavis). Etiquette énergie : A. Différents modèles disponibles pour ce terrain. Assurances et garanties du constructeur (RC professionnelle, décennale, dommage ouvrage, garantie de remboursement de l'acompte, livraison à prix et délai convenu) : https://www.maisons-france-confort.fr/mentions-legales/. HEXAOM Services est enregistré auprès de l'ORIAS en tant que Courtier en financement, Niveau 1, sous le numéro 14001345.Agence Maisons France Confort de Magny-le-Hongre (77700)
- Téléphone :
- 01 84 80 92 96
- Adressse :
- 11 rue de Courtalin
77700 Magny-le-Hongre, France
