Maison neuve à
Saint-Fargeau-Ponthierry
(77310) Référence :
DC2482505_1
Prix du projet : Maison avec Terrain
prix 381 605 €
- 5 pièces
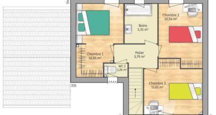
- 3 chambres
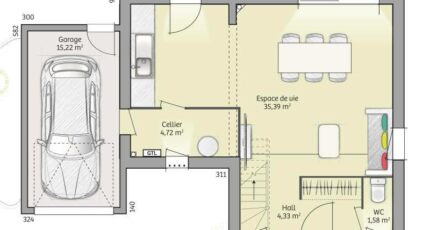
- Surface maison 90 m2
Maison F5 (90 m²) en vente à Saint-Fargeau-Ponthierry
MAISON 5 PIÈCES NEUVE - PROCHE DE CRÉTEIL
À vendre : proche du RER D (station Cesson, 30 min de Paris), à Saint-Fargeau-Ponthierry (77310), venez découvrir cette maison de 5 pièces de 90 m². Elle offre trois chambres, une cuisine et une salle de bains.
Le terrain de la maison s'étend sur 1 062 m².
Il s'agit d'une maison de 2 niveaux. Elle est neuve.
L'École Maternelle les Grands Cèdres, l'École Élémentaire les Grands Cèdres et l'École Maternelle les Bordes sont implantées à moins de 10 minutes à pied. Niveau transports, il y a la ligne de RER D (Ponthierry-Pringy) ainsi que 15 gares à moins de 10 minutes en voiture. On trouve une bibliothèque, des commerces, une boucherie-charcuterie et trois épiceries à proximité.
Elle est à vendre pour la somme de 381 605 €.
Contactez David CORDIER (06-10-79-38-15) pour plus de renseignements sur cette maison, sur les démarches à suivre ou sur les modalités de vente.
Annonce proposée par un Agent Commercial Partenaire.
Mentions légales
Terrain proposé par un partenaire foncier selon disponibilités et autorisation de publicité au prix de 169 000 €. Hors droit d'enregistrement et frais de notaire. Terrain + Maison proposés au prix de 381 605 € (Hors branchements et raccordements, papiers peints, peintures, revêtement de sol dans les chambres. Tarif modifiable sans préavis). Etiquette énergie : A. Différents modèles disponibles pour ce terrain. Assurances et garanties du constructeur (RC professionnelle, décennale, dommage ouvrage, garantie de remboursement de l'acompte, livraison à prix et délai convenu) : https://www.maisons-france-confort.fr/mentions-legales/. HEXAOM Services est enregistré auprès de l'ORIAS en tant que Courtier en financement, Niveau 1, sous le numéro 14001345.Agence Maisons France Confort de Melun (77000)
- Téléphone :
- 01 64 14 43 20
- Adressse :
- 3 route de Nangis
77000 Melun, France