Maison neuve à
Saint-Félix-de-Foncaude (33540) Référence : ML2485662_5

Prix du projet : Maison avec Terrain

prix 247 600 €

  • 6 pièces
  • 3 chambres
  • Surface maison 95 m2

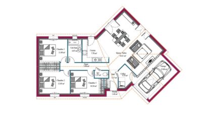
VENTE d'une maison de 6 pièces (95 m²) à Saint-Félix-de-Foncaude
IDÉALEMENT SITUÉE - MAISON 6 PIÈCES NEUVE
À vendre : votre agence Maisons de la Côte Atlantique Langon est heureuse de vous présenter cette maison de 6 pièces de plain-pied de 95 m² idéalement située dans Saint-Félix-de-Foncaude (33540).
Conçue de plain-pied, elle dispose de trois chambres, d'une cuisine et d'une salle de bains. Cette maison est neuve.
Le terrain du bien est de 3 780 m².
La maison se trouve dans un secteur recherché. Des établissements scolaires de tous types (de la maternelle au lycée) sont implantés à moins de 10 minutes en voiture, tout comme une crèche à moins de 10 minutes à pied. Niveau transports en commun, on trouve les gares Gironde-sur-Dropt, Caudrot et La Réole à moins de 10 minutes en voiture. Il y a des bibliothèques, trois bassins de natation, des tennis, des commerces, des épiceries, une supérette, des boucheries-charcuteries et quatre bureaux de poste dans les environs. 2 marchés animent les environs.
Elle est à vendre pour la somme de 247 600 €.
Prenez contact avec Maryne LAGORCE (tél : O6-81-35-86-92) pour plus d'informations sur le bien et sur les modalités de vente.

Mentions légales

Idée de réalisation en modèle prêt à décorer sur l'un de nos terrains partenaires, sous réserve de disponibilités. Voir détails en agence.

Contactez l'agence de Langon

05 56 76 82 20

    * Champs obligatoires

    Vos informations sont traitées par HEXAOM et transmises à un conseiller commercial qui vous contactera afin de répondre à votre demande. Les plans et images présentés sur notre site sont la propriété d’HEXAOM et ne peuvent pas être reproduits sans son accord. Pour retrouver notre politique de protection des données personnelles et exercer vos droits conformément à la « loi informatique et liberté » cliquez-ici.