Maison neuve à
Saint-Gauzens
(81390) Référence :
MB2489536_10
Prix du projet : Maison avec Terrain
prix 294 000 €
- 4 pièces
- 3 chambres
- Surface maison 125 m2
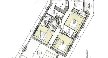
VENTE : maison de 4 pièces (125 m²) à Saint-Gauzens
MAISON 4 PIÈCES NEUVE - PROCHE LAVAUR
À deux pas de Lavaur, notre agence Maisons France Confort Albi est ravie de vous proposer cette maison de 4 pièces de plain-pied de 125 m² en vente à Saint-Gauzens (81390). Son intérieur compte trois chambres, une cuisine et deux salles de bains.
Le terrain de la propriété s'étend sur 649 m².
La maison est neuve.
Elle est à vendre pour la somme de 294 000 €.
Contactez votre agence Maisons France Confort Albi au 05.63.43.56.40 pour toute information sur ce bien ou sur les démarches à suivre.
Annonce proposée par un Agent Commercial Partenaire.
Mentions légales
Terrain proposé par un partenaire foncier selon disponibilités et autorisation de publicité au prix de 61 655 €. Hors droit d'enregistrement et frais de notaire. Terrain + Maison proposés au prix de 294 000 € (Hors branchements et raccordements, papiers peints, peintures, revêtement de sol dans les chambres. Tarif modifiable sans préavis). Etiquette énergie : A. Différents modèles disponibles pour ce terrain. Assurances et garanties du constructeur (RC professionnelle, décennale, dommage ouvrage, garantie de remboursement de l'acompte, livraison à prix et délai convenu) : https://www.maisons-france-confort.fr/mentions-legales/. HEXAOM Services est enregistré auprès de l'ORIAS en tant que Courtier en financement, Niveau 1, sous le numéro 14001345.Agence Maisons France Confort de Albi (81000)
- Téléphone :
- 05 63 43 56 40
- Adressse :
- 187 avenue Colonel Teyssier
81000 Albi, France
