Maison neuve à
Saint-Gély-du-Fesc
(34980) Référence :
NM2458119_2
Prix du projet : Maison avec Terrain
prix 480 000 €
- 5 pièces
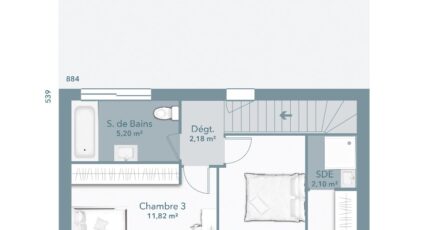
- 3 chambres
- Surface maison 95 m2
Maison Familia de 95 m² proposée ici sur une parcelle de 520 m² à St Gely - en sortie de village.
Vous disposerez de 3 chambres dont la suite parentale au rez-de-chaussée avec sa salle d'eau, les 2 autres chambres à l'étage dont une avec salle d'eau privative également, et la salle de bain avec wc.
Au rez-de-chaussée se trouve le séjour de 35 m² avec cuisine ouverte et un garage intégré de 15 m².
Les plans sont modulables et personnalisables.
RE2020 + GARANTIES CCMI COMPRISES.
L'équipe commerciale de l'agence de St-Gély-du-Fesc se tient à votre disposition pour plus de renseignements.
Annonce proposée par un Agent Commercial Partenaire.
Mentions légales
Terrain proposé par un partenaire foncier selon disponibilités et autorisation de publicité au prix de 259 000 €. Hors droit d'enregistrement et frais de notaire. Terrain + Maison proposés au prix de 480 000 € (Hors branchements et raccordements, papiers peints, peintures, revêtement de sol dans les chambres. Tarif modifiable sans préavis). Etiquette énergie : A. Différents modèles disponibles pour ce terrain. Assurances et garanties du constructeur (RC professionnelle, décennale, dommage ouvrage, garantie de remboursement de l'acompte, livraison à prix et délai convenu) : https://www.maisons-france-confort.fr/mentions-legales/. HEXAOM Services est enregistré auprès de l'ORIAS en tant que Courtier en financement, Niveau 1, sous le numéro 14001345.Agence Maisons France Confort de Saint-Gély-du-Fesc (34980)
- Téléphone :
- 04 67 66 49 65
- Adressse :
- 22 rue des lavandes
34980 Saint-Gély-du-Fesc, France
