Maison neuve à
Saint-Georges-des-Coteaux
(17810) Référence :
LH2408064_1
Prix du projet : Maison avec Terrain
prix 196 250 €
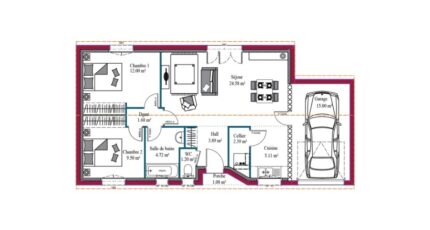
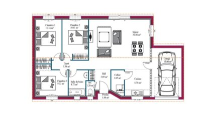
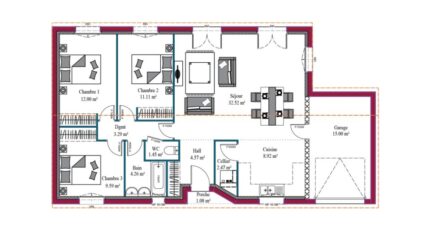
- 3 pièces
- 3 chambres
- Surface maison 90 m2
Configurez votre projet de construction sur ce terrain
Construisez avec nous votre maison de plain-pied, aux normes RE 2020, sur un magnifique terrain.
Votre maison disposera de belles chambres avec placards, d'une salle de bain avec douche ou baignoire, sèche serviette, double vasque ainsi qu'un WC indépendant.
Une grande pièce de vie avec cuisine ouverte donnant sur un séjour très lumineux.
Cette maison fonctionnelle disposera également d'une buanderie donnant sur la cuisine. La maison est carrelée et les chambres peuvent recevoir un parquet. La maison est équipée de volets roulants électriques.
Pour plus de renseignement, merci de contacter notre agence (LAETITIA HATAY 07.59.51.88.45)
Mentions légales
Idée de réalisation en modèle prêt à décorer sur l'un de nos terrains partenaires, sous réserve de disponibilités. Voir détails en agence.Agence Maisons de la Côte Atlantique de Rochefort (17300)
- Téléphone :
- 05 46 88 71 67
- Adressse :
- 95 rue des pêcheurs d'Islande
17300 Rochefort, France
