Maison neuve à
Saint-Germain-sur-Avre
(27320) Référence :
MD2395746_2
Prix du projet : Maison avec Terrain
prix 191 177 €
- 6 pièces
- 4 chambres
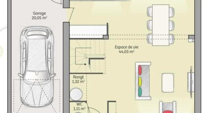
- Surface maison 91 m2
VENTE : maison de 6 pièces (91 m²) à Saint-Germain-sur-Avre
QUARTIER RECHERCHÉ - MAISON 6 PIÈCES NEUVE
À deux pas de la gare de Dreux (Paris à 60 min par le Transilien N), Maisons France Confort Vernon vous propose cette maison de 6 pièces de 91 m² située dans un quartier prisé de Saint-Germain-sur-Avre (27320).
Cette maison compte 2 niveaux. Elle compte quatre chambres, une cuisine et une salle de bains. La maison est neuve.
Le terrain de la propriété est de 310 m².
Cette maison se situe dans un secteur attractif. L'École Primaire Maurice Mary se trouve à moins de 10 minutes à pied. Niveau transports en commun, il y a les gares Nonancourt et Dreux à moins de 10 minutes en voiture. Les nationales N12 et N154 sont accessibles à moins de 10 km et Évreux est située à 28 km. On trouve un tennis à proximité du logement.
Elle est proposée à l'achat pour 191 177 €.
Contactez notre agence (DEBART Murielle : 06-29-34-36-28) pour tout renseignement sur la maison.
Mentions légales
Terrain proposé par un partenaire foncier selon disponibilités et autorisation de publicité au prix de 35 000 €. Hors droit d'enregistrement et frais de notaire. Terrain + Maison proposés au prix de 191 177 € (Hors branchements et raccordements, papiers peints, peintures, revêtement de sol dans les chambres. Tarif modifiable sans préavis). Etiquette énergie : A. Différents modèles disponibles pour ce terrain. Assurances et garanties du constructeur (RC professionnelle, décennale, dommage ouvrage, garantie de remboursement de l'acompte, livraison à prix et délai convenu) : https://www.maisons-france-confort.fr/mentions-legales/. HEXAOM Services est enregistré auprès de l'ORIAS en tant que Courtier en financement, Niveau 1, sous le numéro 14001345.Agence Maisons France Confort de Vernon (27200)
- Téléphone :
- 02 32 51 45 05
- Adressse :
- 38 rue Carnot
27200 Vernon, France
