Maison neuve à
Saint-Guyomard (56460) Référence : GC2281002_1

Prix du projet : Maison avec Terrain

prix 242 900 €

  • 4 pièces
  • 3 chambres
  • Surface maison 80 m2

VENTE d'une maison de 4 pièces (80 m²) à Saint-Guyomard
MAISON 4 PIÈCES NEUVE - PROCHE DE VANNES
À vendre : située à 26 km de l'océan Atlantique et à 23 km de Vannes, Maisons de l'Avenir Vannes vous propose cette maison de 4 pièces de 80 m² à Saint-Guyomard (56460).
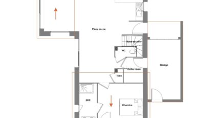
Cette maison compte 2 niveaux. Elle dispose de trois chambres, d'une cuisine et de deux salles de bains. La maison est neuve.
Le terrain de la propriété est de 623 m².
L'École Primaire Privée Sainte Marguerite et l'École Primaire Publique la Belle École sont implantées à moins de 10 minutes à pied. La nationale N166 est accessible à 2 km. On trouve un tennis, une bibliothèque et une épicerie dans les environs.
Son prix de vente est de 242 900 €.
N'hésitez pas à prendre contact avec notre agence (CHARUEL Germain : 02-97-68-32-50) pour obtenir de plus amples informations sur ce bien, sur les modalités de vente et sur les démarches à suivre. Maisons de l'Avenir Vannes est là pour vous accompagner à toutes les étapes de votre projet.

Mentions légales

Maisons de l’Avenir, constructeur de maisons individuelles, propose en collaboration avec ses partenaires fonciers, une sélection de terrains constructibles, selon disponibilité, pour la construction de maisons neuves définies par le constructeur, avec un contrat de construction de maison individuelle, dans le cadre de la loi du 19/12/1990. Prix net, hors frais notariés, d'enregistrement et de publicité foncière

Terrain proposé au prix de : 74 990 €

Maison proposée au prix de : 167 910 €

Etiquette énergie : A. Assurances et garanties du constructeur (RC professionnelle, décennale, dommage ouvrage, Garantie de livraison à prix et délai convenu). https://www.maisonsdelavenir.com/mentions-legales/

Contactez l'agence de Vannes

02 97 68 32 50

    * Champs obligatoires

    Vos informations sont traitées par HEXAOM et transmises à un conseiller commercial qui vous contactera afin de répondre à votre demande. Les plans et images présentés sur notre site sont la propriété d’HEXAOM et ne peuvent pas être reproduits sans son accord. Pour retrouver notre politique de protection des données personnelles et exercer vos droits conformément à la « loi informatique et liberté » cliquez-ici.