Maison neuve à
Saint-Guyomard (56460) Référence : AS2295507_2

Prix du projet : Maison avec Terrain

prix 269 000 €

  • 5 pièces
  • 4 chambres
  • Surface maison 88 m2

VENTE : maison F5 (88 m²) à Saint-Guyomard
IDÉALEMENT SITUÉE - MAISON 5 PIÈCES NEUVE
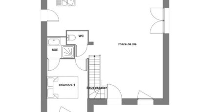
À vendre : à 26 km de l'océan Atlantique et à deux pas de Vannes, idéalement située dans Saint-Guyomard (56460), nous vous présentons cette maison de 5 pièces de 88 m² et de 660 m² de terrain. Son intérieur est composé de quatre chambres, d'une cuisine et d'une salle de bains.
C'est une maison de 2 niveaux. Elle est neuve.
La maison est située dans un secteur attractif. L'École Primaire Privée Sainte Marguerite et l'École Primaire Publique la Belle École sont implantées à moins de 10 minutes à pied. On trouve un accès à la nationale N166 à 2 km. On trouve un tennis, une bibliothèque et une épicerie à quelques minutes.
Elle est proposée à l'achat pour 269 000 €.
Prenez contact avec notre agence (SPECKHALS Amaury : 02-97-68-32-50) pour toute question sur la maison, sur les démarches à suivre ou sur les modalités de vente. Maisons de l'Avenir Vannes vous accompagne dans tous vos projets immobiliers et à toutes les étapes de l'achat.

Mentions légales

Maisons de l’Avenir, constructeur de maisons individuelles, propose en collaboration avec ses partenaires fonciers, une sélection de terrains constructibles, selon disponibilité, pour la construction de maisons neuves définies par le constructeur, avec un contrat de construction de maison individuelle, dans le cadre de la loi du 19/12/1990. Prix net, hors frais notariés, d'enregistrement et de publicité foncière

Terrain proposé au prix de : 77 950 €

Maison proposée au prix de : 191 050 €

Etiquette énergie : A. Assurances et garanties du constructeur (RC professionnelle, décennale, dommage ouvrage, Garantie de livraison à prix et délai convenu). https://www.maisonsdelavenir.com/mentions-legales/

Contactez l'agence de Vannes

02 97 68 32 50

    * Champs obligatoires

    Vos informations sont traitées par HEXAOM et transmises à un conseiller commercial qui vous contactera afin de répondre à votre demande. Les plans et images présentés sur notre site sont la propriété d’HEXAOM et ne peuvent pas être reproduits sans son accord. Pour retrouver notre politique de protection des données personnelles et exercer vos droits conformément à la « loi informatique et liberté » cliquez-ici.