Maison neuve à
Saint-Hilaire (11250) Référence : SE2490228_15

Prix du projet : Maison avec Terrain

prix 325 438 €

  • 6 pièces
  • 4 chambres
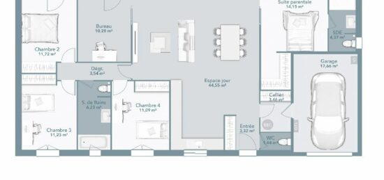
  • Surface maison 140 m2

VENTE : maison de 6 pièces (140 m²) à Saint-Hilaire
IDÉALEMENT SITUÉE - MAISON 6 PIÈCES NEUVE
En vente à deux pas de Carcassonne, nous vous présentons cette maison de 6 pièces de 140 m² et de 1 000 m² de terrain idéalement située dans Saint-Hilaire (11250). Elle est composée de quatre chambres, d'une cuisine et de deux salles de bains.
C'est une maison de 2 niveaux. Elle est neuve.
Cette maison se situe dans un secteur convoité. Une école primaire y est implantée. Côté transports en commun, on trouve cinq gares à moins de 10 minutes en voiture. L'autoroute A61 est accessible à 12 km. Il y a un tennis et un commerce à proximité du logement.
Elle est à vendre pour la somme de 325 438 €.
N'hésitez pas à prendre contact avec notre agence (EMBID Stéphane : 06-65-50-56-62) pour obtenir de plus amples renseignements sur la maison, sur les démarches à suivre ou sur les modalités de vente. Maisons France Confort Carcassonne vous accompagne dans tous vos projets immobiliers et à toutes les étapes de votre projet.

Mentions légales

Terrain proposé par un partenaire foncier selon disponibilités et autorisation de publicité au prix de 40 000 €. Hors droit d'enregistrement et frais de notaire. Terrain + Maison proposés au prix de 325 438 € (Hors branchements et raccordements, papiers peints, peintures, revêtement de sol dans les chambres. Tarif modifiable sans préavis). Etiquette énergie : A. Différents modèles disponibles pour ce terrain. Assurances et garanties du constructeur (RC professionnelle, décennale, dommage ouvrage, garantie de remboursement de l'acompte, livraison à prix et délai convenu) : https://www.maisons-france-confort.fr/mentions-legales/. HEXAOM Services est enregistré auprès de l'ORIAS en tant que Courtier en financement, Niveau 1, sous le numéro 14001345.

Contactez l'agence de Carcassonne

04 68 47 39 25

    * Champs obligatoires

    Vos informations sont traitées par HEXAOM et transmises à un conseiller commercial qui vous contactera afin de répondre à votre demande. Les plans et images présentés sur notre site sont la propriété d’HEXAOM et ne peuvent pas être reproduits sans son accord. Pour retrouver notre politique de protection des données personnelles et exercer vos droits conformément à la « loi informatique et liberté » cliquez-ici.