Maison neuve à
Saint-Hilaire-lez-Cambrai (59292) Référence : MM2465989_1

Prix du projet : Maison avec Terrain

prix 360 000 €

  • 5 pièces
  • 3 chambres
  • Surface maison 90 m2

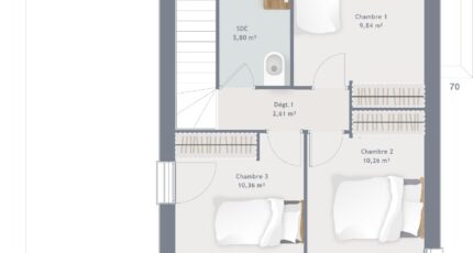
VENTE d'une maison T5 (90 m²) à Saint-Hilaire-lez-Cambrai
IDÉALEMENT SITUÉE - MAISON 5 PIÈCES NEUVE
À vendre : située proche de Cambrai et de Valenciennes, venez découvrir, idéalement située dans Saint-Hilaire-lez-Cambrai (59292), cette maison de 5 pièces de 90 m² et de 510 m² de terrain.
Cette maison comporte 2 niveaux. Elle dispose de trois chambres, d'une cuisine et d'une salle de bains. La maison est neuve.
Elle se trouve dans un secteur recherché. L'École Maternelle Suzanne Lannoy et l'École Élémentaire Joliot-Curie sont implantées à moins de 10 minutes à pied. Niveau transports, il y a quatre gares à moins de 10 minutes en voiture. Les autoroutes A2, A21 et A23 sont accessibles à moins de 19 km. On trouve une boulangerie, un commerce et une boucherie-charcuterie dans les environs.
Son prix de vente est de 360 000 €.
N'hésitez pas à prendre contact avec notre agence (MAZZUCCO Mathieu : O6.40.99.52.08) pour obtenir de plus amples informations sur la maison.

Mentions légales

Terrain proposé par un partenaire foncier selon disponibilités et autorisation de publicité au prix de 59 000 €. Hors droit d'enregistrement et frais de notaire. Terrain + Maison proposés au prix de 360 000 € (Hors branchements et raccordements, papiers peints, peintures, revêtement de sol dans les chambres. Tarif modifiable sans préavis). Etiquette énergie : A. Différents modèles disponibles pour ce terrain. Assurances et garanties du constructeur (RC professionnelle, décennale, dommage ouvrage, garantie de remboursement de l'acompte, livraison à prix et délai convenu) : https://www.maisons-france-confort.fr/mentions-legales/. HEXAOM Services est enregistré auprès de l'ORIAS en tant que Courtier en financement, Niveau 1, sous le numéro 14001345.

Contactez l'agence de Cambrai

03 27 81 47 17

    * Champs obligatoires

    Vos informations sont traitées par HEXAOM et transmises à un conseiller commercial qui vous contactera afin de répondre à votre demande. Les plans et images présentés sur notre site sont la propriété d’HEXAOM et ne peuvent pas être reproduits sans son accord. Pour retrouver notre politique de protection des données personnelles et exercer vos droits conformément à la « loi informatique et liberté » cliquez-ici.